EasyManua.ls Logo

Goodman TSTATG2152-2 - Wiring Connections Guide

Goodman TSTATG2152-2
40 pages
Print Icon
To Next Page IconTo Next Page
To Next Page IconTo Next Page
To Previous Page IconTo Previous Page
To Previous Page IconTo Previous Page
Loading...
Wire Connections
If the terminal designations on your old
thermostat do not match those on the
new thermostat, refer to the chart below
or the wiring diagrams that follow.
Wire from the
old thermostat
terminal marked
Function
Install on the
new thermostat
connector marked
(Energize to Heat)
C
Rc, R, M, Vr, A
Y1 or Y
W1, W or H
G or F
B
O
Common
Power
Cooling
Auxiliary Heat
Fan
Rev. Valve
Rev. Valve
C (optional)
R
Y
W
G
B
O
(Energize to Cool)
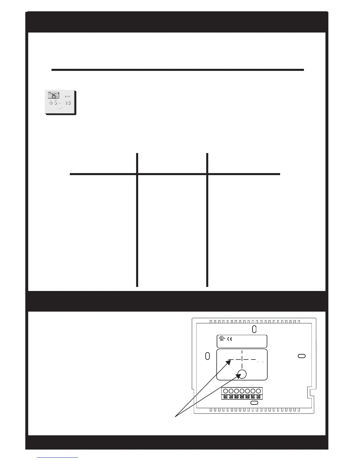
A label is provided on the
backplate that prevents drafts
originating inside the wall from
entering the thermostat.
These drafts, left unchecked, may
cause incorrect room temperature
readings.
Please do not remove this label
from the thermostat. Insert the wires
through the slots provided in the label
as shown in Fig. 1.
Thermal Insulating Sheet
Fig. 1
Wire Slots
Page 7
C R Y W G B O
4Z95
MODEL: TSTATG2152-2
97061606
MADE IN CHINA
USE SIZE “AA
ALKALINE BATTERIES
TSTATG2152-2
INSTALLATION INSTRUCTIONS

Other manuals for Goodman TSTATG2152-2

Related product manuals