EasyManua.ls Logo

Goodman TSTATG2152-2 - Installation Testing and Troubleshooting; Installation Test Procedures

Goodman TSTATG2152-2
40 pages
Print Icon
To Next Page IconTo Next Page
To Next Page IconTo Next Page
To Previous Page IconTo Previous Page
To Previous Page IconTo Previous Page
Loading...
Page 12
Turn on the power to the Heat Pump.
Test Operation
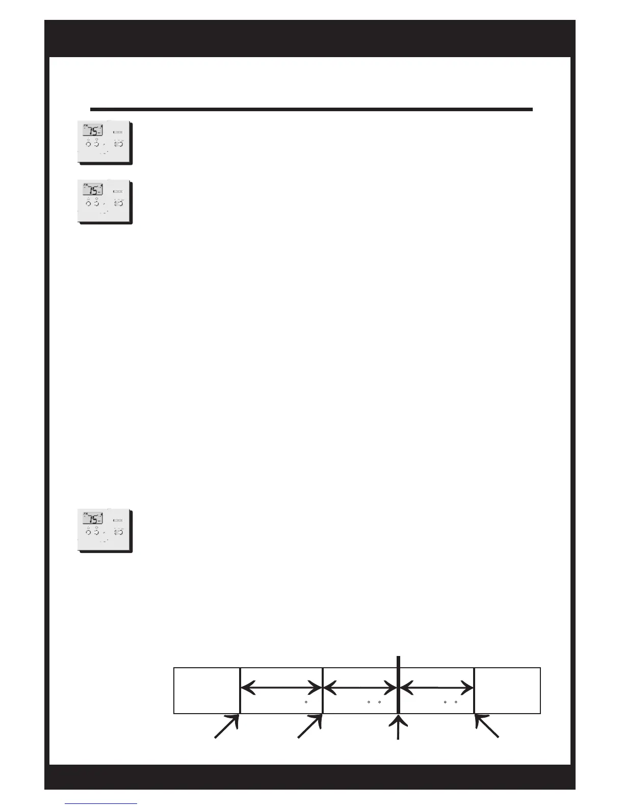
TWO STAGE OPERATION - The 2nd stage
of heat (auxiliary heat) is turned on when
the room temperature is equal to or less
than: the setpoint minus the 1st stage
deadband (one degree, adjustable), minus
the 2nd stage deadband (two degrees,
non-adjustable).
Heat or Cool
Setpoint
Deadband Deadband
db 1db 2
(adj. 1-6 )
1st Stage
turn on
2nd Stage
turn on
Heating
(non-adj. 2 )
Deadband
db 1
(adj. 1-6 )
1st Stage
turn on
Cooling
INSTALLATION INSTRUCTIONS
On the thermostat, slide the Mode Switch
to HEAT. Press the COOLER or WARMER
button until the set temperature is 10 degrees
above room temperature. The HVAC unit
should energize in the heating mode.
Note: You may need to wait up to five minutes
for heating to energize due to the compressor
lockout feature. There is a two minute min-
imum run-time for first stage heating.
On the thermostat, slide the Aux Heat
Switch to the NORMAL position. The
Aux Heat icon will appear indicating that
the thermostat has energized Aux Heat
(page 7 of the Owner’s Manual).
TSTATG2152-2

Other manuals for Goodman TSTATG2152-2

Related product manuals