EasyManua.ls Logo

Goodman TSTATG2152-2 - Wiring Diagram: 5 Wire, 2 Stage Heat Pump (O Valve)

Goodman TSTATG2152-2
40 pages
Print Icon
To Next Page IconTo Next Page
To Next Page IconTo Next Page
To Previous Page IconTo Previous Page
To Previous Page IconTo Previous Page
Loading...
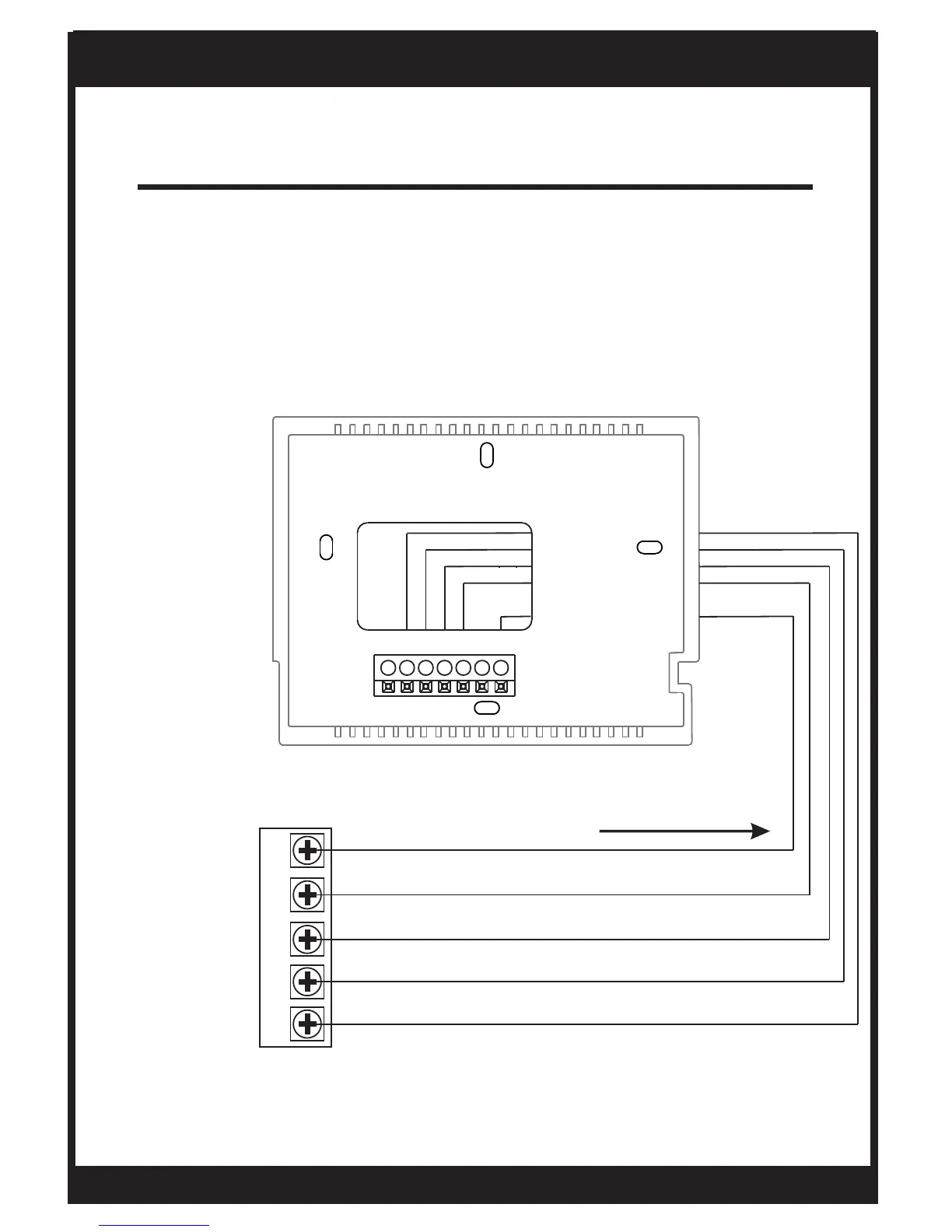
Sample Wiring Diagrams
5 Wire, 1 Stage Cooling, 2 Stage Heat-Heat Pump with O reversing valve.
Residential Heat Pumps, split systems & package units, with auxiliary heat.
Page 9
*
Common wire is optional in all installations. If a common wire is not used the
thermostat must be powered by two AA alkaline batteries. These batteries
must be replaced (page 11) each year or when the Low Battery indicator is displayed
(page 3).
5 Conductor 18 to 22 gauge
unshielded cable from the
thermostat to the equipment.
Common wire optional
*
FAN
G
POWER
R O
REVERSING VALVE
COMPRESSOR
Y
AUXILIARY HEAT
W
C R Y W G B O
TSTATG2152-2
INSTALLATION INSTRUCTIONS

Other manuals for Goodman TSTATG2152-2

Related product manuals