EasyManua.ls Logo

Graco 015.050-DP - SOUND EMISSION

Graco 015.050-DP
53 pages
Print Icon
To Next Page IconTo Next Page
To Next Page IconTo Next Page
To Previous Page IconTo Previous Page
To Previous Page IconTo Previous Page
Loading...
- 05 - B.6.20.44-P
F22.060.03, issued on 01.98
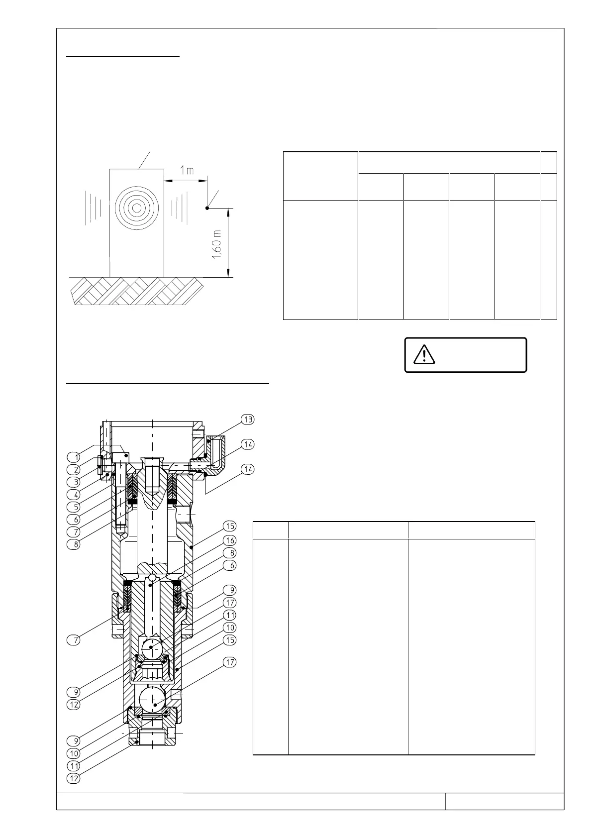
SOUND EMISSION
As the working place cannot be anticipated and every place is different, the highest sound level is
shown.
Air inlet overpressure in bar
Reciprocating
pump
2 4 6 8 (7)*
015.050-DP
020.035-DP
025.008-DP
030.020-DP
030.050-DP
040.035-DP
060.020-DP
76
76
74
76
78
78
78
81
81
79
81
82
82
82
84
84
81
84
85
85
85
85
85
84
85
89
89
88
Sound pressure in dB (A)
A danger warning sign is attached to the reciprocating pump.
CONSTRUCTION MATERIALS OF
THE SURFACE AREA IN CONTACT WITH FLUID MATERIAL
SOUND PRESSURE
> 70dB(A)
Measuring
device
MEASUREMENT SPACING
Sound source
Pos. Designation Material/surface
1
2
3
4
5
6
7
8
9
10
11
12
13
14
15
16
17
Cheese head screw
Seal washer
Fixing screw
Coupling housing
Flat packing
Stuffing
Thrust ring and
support ring
Spring washer
Seal washer
Profile sealing ring
Valve seat
Banjo bolt
Level indicator
O-ring
Cylinder Step piston
Ball
St/galvanised
PA 6
St/galvanised
1.4104
Rubber/Aramide fibre
PE/PTFE
1.4305
1.4310
PE
PE
Hard metal G10
1.4305/nickel-plated
PA
FPM
1.4305
1.4305/chrome-plated
1.4125

Related product manuals