EasyManua.ls Logo

Graco 015.050-DP - LIST OF REPAIR PARTS

Graco 015.050-DP
53 pages
Print Icon
To Next Page IconTo Next Page
To Next Page IconTo Next Page
To Previous Page IconTo Previous Page
To Previous Page IconTo Previous Page
Loading...
Page 1 of 7
10.99
06.10.99 Hilse
RECIPROCATING PUMPS MERKUR 2000
USER INFORMATION
- LIST OF REPAIR PARTS -
Issued
B.6.20.44.-EO
Note the protection mark in accordance with DIN 34
Prepared by.
Subject to change
F22.060.01, issued on 01.98
19.10.99 Kuhn
Checked by.
*5$&2
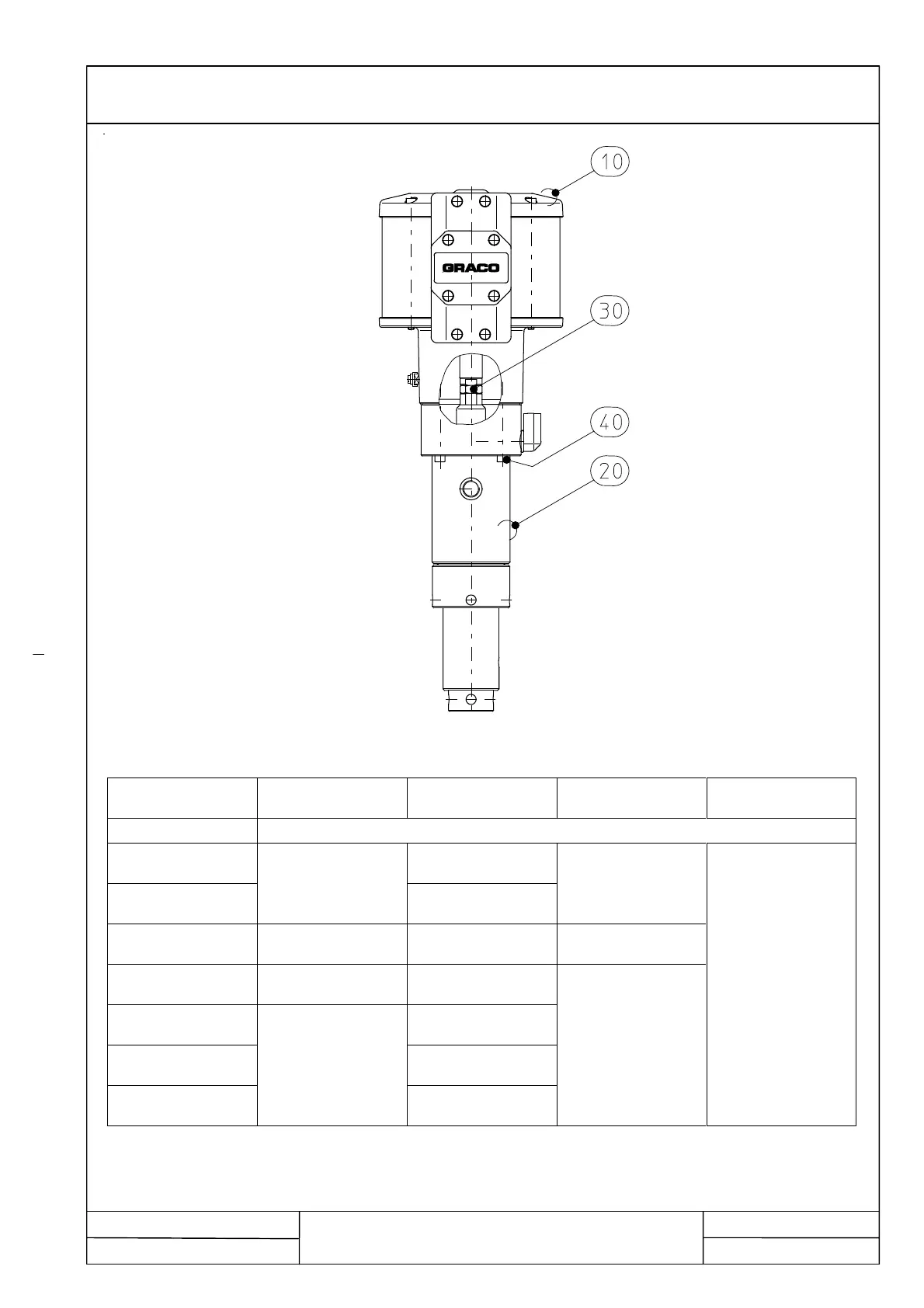
Air motor
Pos. 10
Displacement pump
Pos. 20
Thread piece
Pos. 30
Parallel pin
Pos. 40
Reciprocating pump
015.050-DP
000.050-DO
78003 014002
020.035-DP
D110 S70
78015 004003
000.035-DO
78003 015002
M14 x 1
76742 016001
025.008-DP
D60 S70
78015 004002
000.008-DO
78003 005002
M8 x 1
76742 009001
030.020-DP
D110 S70
78015 004003
000.020-DO
78003 013002
030.050-DP
000.050-DO
78003 014002
040.035-DP
000.035-DO
78003 015002
060.020-DP
D160 S70
78015 004004
000.020-DO
78003 013002
M14 x 1
76742 016001
4 x
M6 x 70
740006 084033

Related product manuals