EasyManua.ls Logo

Grant Vortex - Page 11

Default Icon
64 pages
Print Icon
To Next Page IconTo Next Page
To Next Page IconTo Next Page
To Previous Page IconTo Previous Page
To Previous Page IconTo Previous Page
Loading...
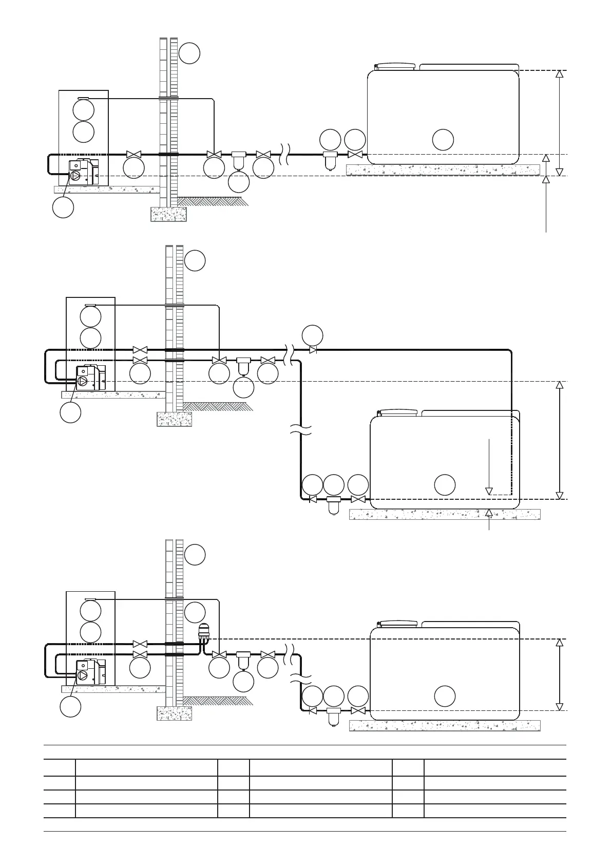
Section 3: Oil Storage and Supply System Page 11
Figure 3-1: Single pipe (gravity) system
Figure 3-2: Two pipe system
Figure 3-3: De-aeration device system
1
23
2
6
12
9
7
4
8
5
10
3.5m Max
150mm
10
1
2
3
2
6
12
9
7
4
8
5
4m Max
300mm
Min
123
2
6
12
9
7
4
8
5
11
3.5m Max
10
Key to oil supply diagrams
1 Oil tank 5 External wall 9 Burner
2 Isolating valve 6 Oil lter (15m max. ltration size) 10 Non-return valve
3 Oil strainer 7 Fire valve sensor 11 De-aerator*
4 Fire valve to BS5410-1 8 Oil pump 12 Appliance isolation valves
* Position of de-aeration device must be level with or above the oil pump

Table of Contents

Related product manuals