EasyManua.ls Logo

Gree GRS-CQ6.0Pd/NhG-K - Commissioning; Pre-Startup Checks

Gree GRS-CQ6.0Pd/NhG-K
180 pages
To Next Page IconTo Next Page
To Next Page IconTo Next Page
To Previous Page IconTo Previous Page
To Previous Page IconTo Previous Page
Loading...
Air-to-water Heat Pump
48
MONOBLOC
TYPE
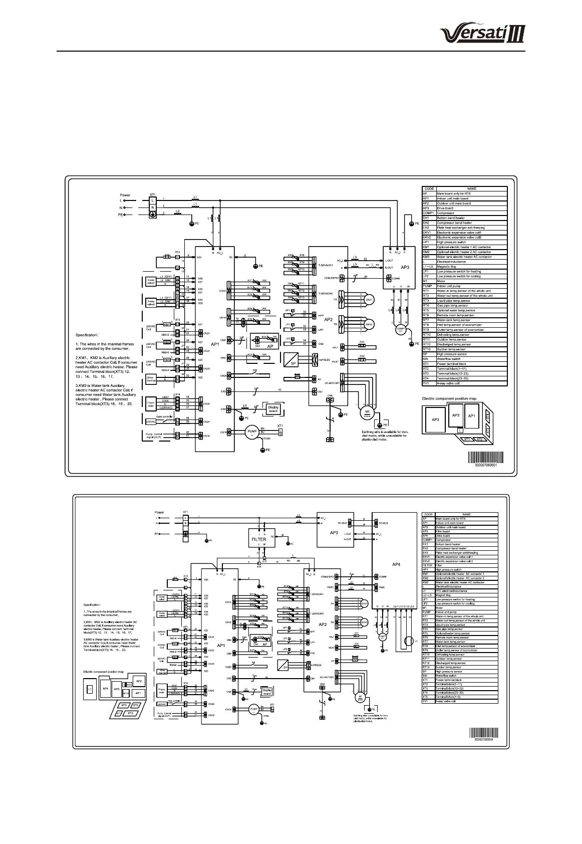
17.2 Electric Wiring
17.2.1 Wiring principle
Refer to Section 15.4.
17.2.2 Electric wiring
The wiring diagram stuck to the unit always prevails.
(1) GRS-CQ4.0Pd/NhG-K
,
GRS-CQ6.0Pd/NhG-K
,
GRS-CQ8.0Pd/NhG-K
(2) GRS-CQ10Pd/NhG-K, GRS-CQ12Pd/NhG-K, GRS-CQ14Pd/NhG-K, GRS-CQ16Pd/NhG-K

Table of Contents

Other manuals for Gree GRS-CQ6.0Pd/NhG-K

Related product manuals