EasyManua.ls Logo

Gree GRS-CQ6.0Pd/NhG-K - 9 Termostato

Gree GRS-CQ6.0Pd/NhG-K
180 pages
To Next Page IconTo Next Page
To Next Page IconTo Next Page
To Previous Page IconTo Previous Page
To Previous Page IconTo Previous Page
Loading...
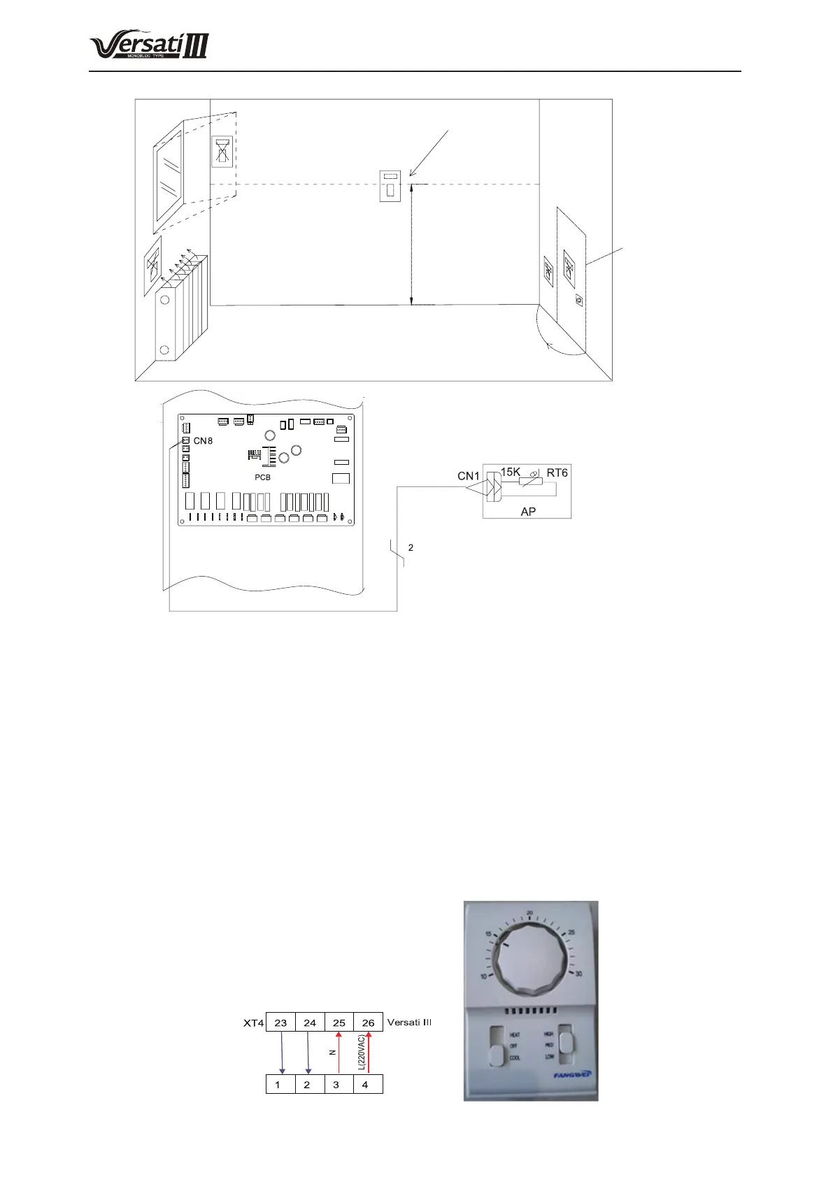
Bomba de calor aire-agua
25
Sensor de temperatura ambiente
de aire a distancia
Puertas
1,5 metros
NO
NO
NO
NO
Sensor de temperatura de aire a distancia
Caja de conexiones
Notas
(a) La distancia entre la unidad exterior y el sensor de temperatura de aire a distancia deberá ser de menos de
15 metros, debido a la longitud del cable de conexión del sensor de temperatura de aire a distancia.
(b) La altura sobre el suelo es de aproximadamente 1,5 m.
(c) El sensor de temperatura de aire a distancia no deberá situarse en un área que quede oculta si se abre la puerta.
(d) El sensor de temperatura de aire a distancia no deberá situarse en un lugar sometido a inuencias térmicas
externas.
(e) El sensor de temperatura de aire a distancia deberá instalarse en lugares en que se aplique principalmente la
calefacción espacial.
(f) Una vez instalado el sensor de temperatura de aire a distancia, deberá ajustarse a "With" ["Con"] mediante el
controlador por cable para ajustar la temperatura de aire a distancia al punto de control.
9. Termostato
La instalación del termostato es muy similar a la del sensor de temperatura de aire a distancia.
REFRIGERACIÓN
CALEFACCIÓN
Termostato

Table of Contents

Other manuals for Gree GRS-CQ6.0Pd/NhG-K

Related product manuals