EasyManua.ls Logo

Grundfos DDI 150-4

Grundfos DDI 150-4
632 pages
To Next Page IconTo Next Page
To Next Page IconTo Next Page
To Previous Page IconTo Previous Page
To Previous Page IconTo Previous Page
Loading...
Português (PT)
350
5. Instalação
5.1 Informações gerais sobre a instalação
5.2 Local de instalação
5.2.1 Espaço necessário para a operação e manutenção
Os elementos de comando têm ser facilmente acessíveis durante
a operação.
Os trabalhos de manutenção na cabeça doseadora e nas válvu-
las devem ser realizados regularmente.
Providencie espaço suficiente para a remoção da cabeça dosea-
dora e das válvulas.
5.2.2 Influências ambientais permissíveis
Temperatura ambiente permissível: 0 °C a +40 °C.
Humidade de ar permissível: Humidade relativa máxima:
92 % (não condensante).
5.2.3 Superfície de montagem
A bomba deve ser montada numa superfície plana.
5.3 Montagem
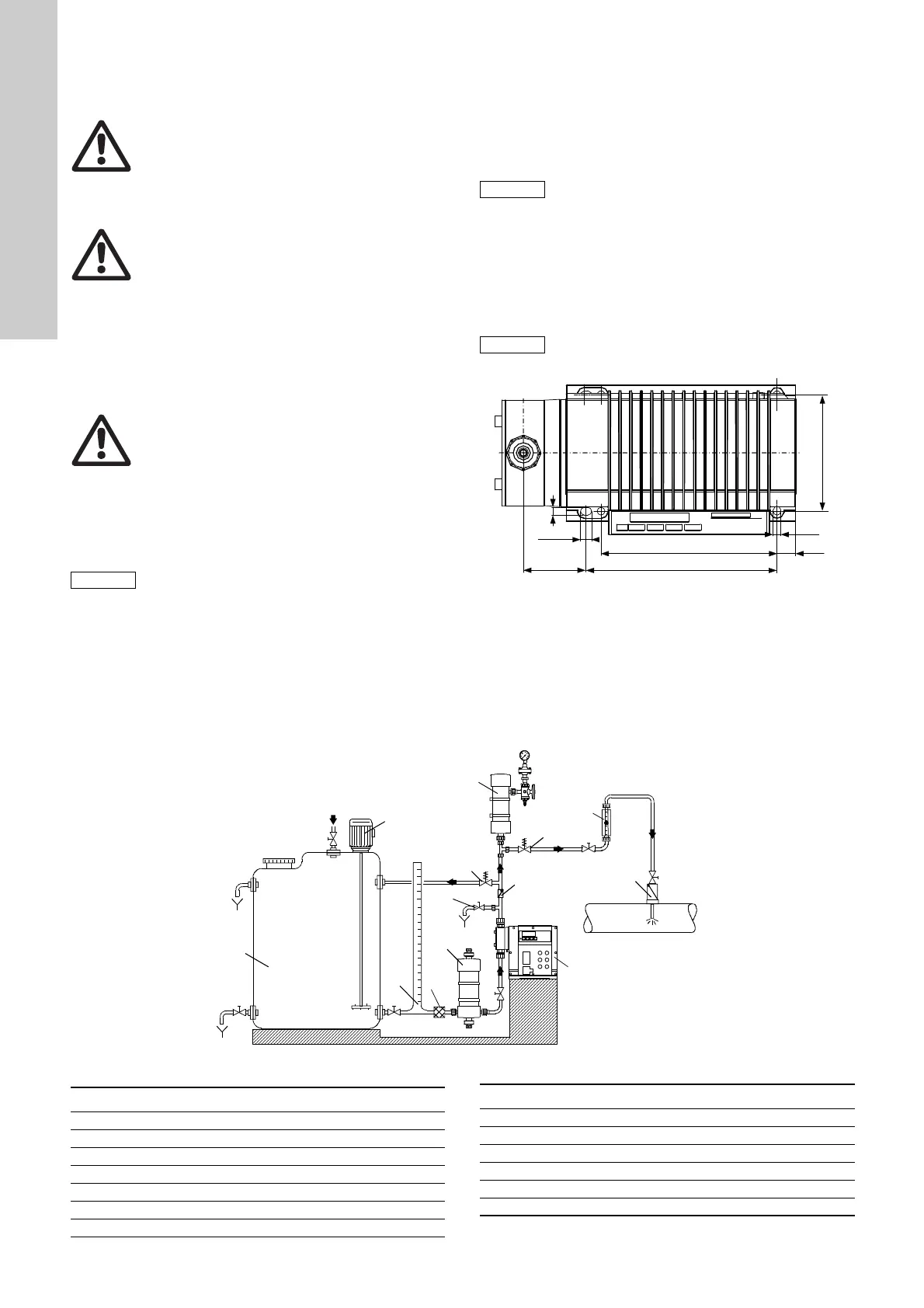
Fig. 5 Esquema de perfuração
Utilize quatro parafusos M6 para montar a bomba no depósito
ou numa consola de forma que a válvula de aspiração fique
na parte inferior e a válvula de descarga na parte superior
(o doseamento flúi sempre em sentido ascendente).
5.4 Exemplos de instalação
Fig. 6 Exemplo de instalação de uma bomba com purga manual
Aviso
Observe as especificações sobre o local de instala-
ção e domínio de aplicação descritos na secção
1. Informação geral e 5.2 Local de instalação.
Aviso
Falhas, operação incorrecta ou falhas da bomba ou
do sistema podem, por exemplo, conduzir
ao doseamento excessivo ou insuficiente ou a pres-
são permissível poderá ser excedida. As falhas ou
danos consequentes têm que ser avaliados pelo
operador e têm que ser tomadas medidas de preven-
ção apropriadas!
Aviso
Perigo para a vida devido à não actuação do equipa-
mento de protecção de corrente residual!
Se a bomba estiver ligada a uma instalação eléctrica
onde estiver a ser usado um equipamento de protec-
ção de corrente residual, este deve disparar quando
exisitirem correntes de fuga à terra com componente
DC. Isto significa que um equipamento de protecção
de corrente residual tipo B, sensível à corrente uni-
versal, deve ser utilizado.
Nota
A bomba deve ser instalada numa posição em que
seja facilmente acessível durante a operação e os
trabalhos de manutenção.
Atenção
O local de instalação deve estar coberto!
Assegure-se que a categoria de protecção do motor
e da bomba não é afectada pelas condições atmos-
féricas.
As bombas com sistema electrónico são apenas
adequadas para utilização interior! Não instale no
exterior!
Atenção
Aperte os parafusos cuidadosamente, caso
contrário poderá danificar a caixa de plástico.
TM03 6664 4506
7
9.95
7
(159)
172.5
16.5
105
C1
TM03 6665 4506
1i
2i
3i
4i
5i
6i
7i
9i
10i
8i
15i
11i
12i
Pos. Componentes
1i Depósito doseador
2i Agitador eléctrico
3i Dispositivo de extracção
4i Amortecedor de pulsação da aspiração
5i Bomba doseadora
6i Válvula de escape
7i Válvula anti-sifonagem
8i Amortecedor de pulsação
9i Tubo de calibração
10i Unidade de injecção
11i Válvula de purga e evacuação
12i Válvula anti-retorno
15i Filtro
Pos. Componentes

Table of Contents

Related product manuals