EasyManua.ls Logo

Grundfos DDI 150-4

Grundfos DDI 150-4
632 pages
To Next Page IconTo Next Page
To Next Page IconTo Next Page
To Previous Page IconTo Previous Page
To Previous Page IconTo Previous Page
Loading...
中文 (CN)
590
5. 安装
5.1 安装概述
5.2 安装场地
5.2.1 对操作和维护保养空间场地的要求
在运行期间控制元件必需易于人员接近。
对泵头和所有阀门的维修保养工作必须定期执行。
为拆卸泵头和阀门提供足够的空间场地。
5.2.2 允许环境影响因素
允许环境温度: 0
°C 至 +40 °C。
允许空气湿度: 最大相对湿度: 92 % (无冷凝)。
5.2.3 安装表面
泵必须被安装在一平面上。
5.3 安装固定
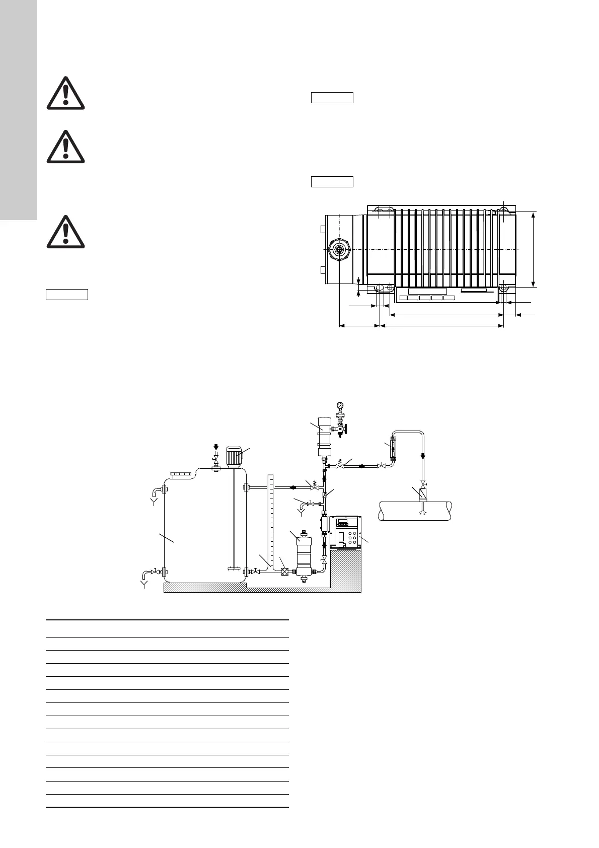
图 5 钻孔位置图解
用4个M6螺栓将泵固定在水箱或控制台上,使得吸入阀位于下方
排入阀位于上方 (计量的流动方向总是朝上)。
5.4 安装示范
图 6 带手动除气的泵的安装示范
警告
注意遵守对安装场地和应用范围的技术规范要求,
详情参见章节
1. 概述
5.2 安装场地
警告
过失、不正确的操作或泵和系统的故障可以造成不良
后果,例如,导致计量过量或不足;超出允许的压力
范围等。 由此引发的故障或损坏必须由操作人员作出
评估并采取恰当的预防措施防止类似情况的发生!
警告
如漏电断路器 (RCD)未跳闸可能会导致人身危险!
如果计量泵的供电电源装有RCD,则必须保证该RCD
在有脉冲直流电漏电和平滑直流电漏电的情况下都能
自动跳闸。 这意味着必须使用对交流电和直流电均能
检测的B型RCD。
注意
水泵的安装场地必须易于操作和维护保养工作的开展。
小心
安装场地必须有遮盖!
确保电机和水泵的外壳防护等级不会受到大气条件的
影响。
配有电子设备的泵只可在室内使用! 切勿在室外安装!
小心
拧紧螺栓时要小心,否则可能引起塑料机壳损坏。
TM03 6664 4506
7
9.95
7
(159)
172.5
16.5
105
C1
TM03 6665 4506
1i
2i
3i
4i
5i
6i
7i
9i
10i
8i
15i
11i
12i
位置 组件
1i 计量水箱
2i 电子搅拌器
3i 取液装置
4i 吸入脉动阻尼器
5i 计量泵
6i 通流阀
7i 压力加载阀
8i 脉动阻尼器
9i 刻度管
10i 注射单元
11i 除气和排空阀
12i 止回阀
15i 过滤器

Table of Contents

Related product manuals