EasyManua.ls Logo

Haier MRV5-H - 5. Refrigerant Flow for Each Operation Mode

Haier MRV5-H
262 pages
To Next Page IconTo Next Page
To Next Page IconTo Next Page
To Previous Page IconTo Previous Page
To Previous Page IconTo Previous Page
Loading...
27
Segregator
Segregator
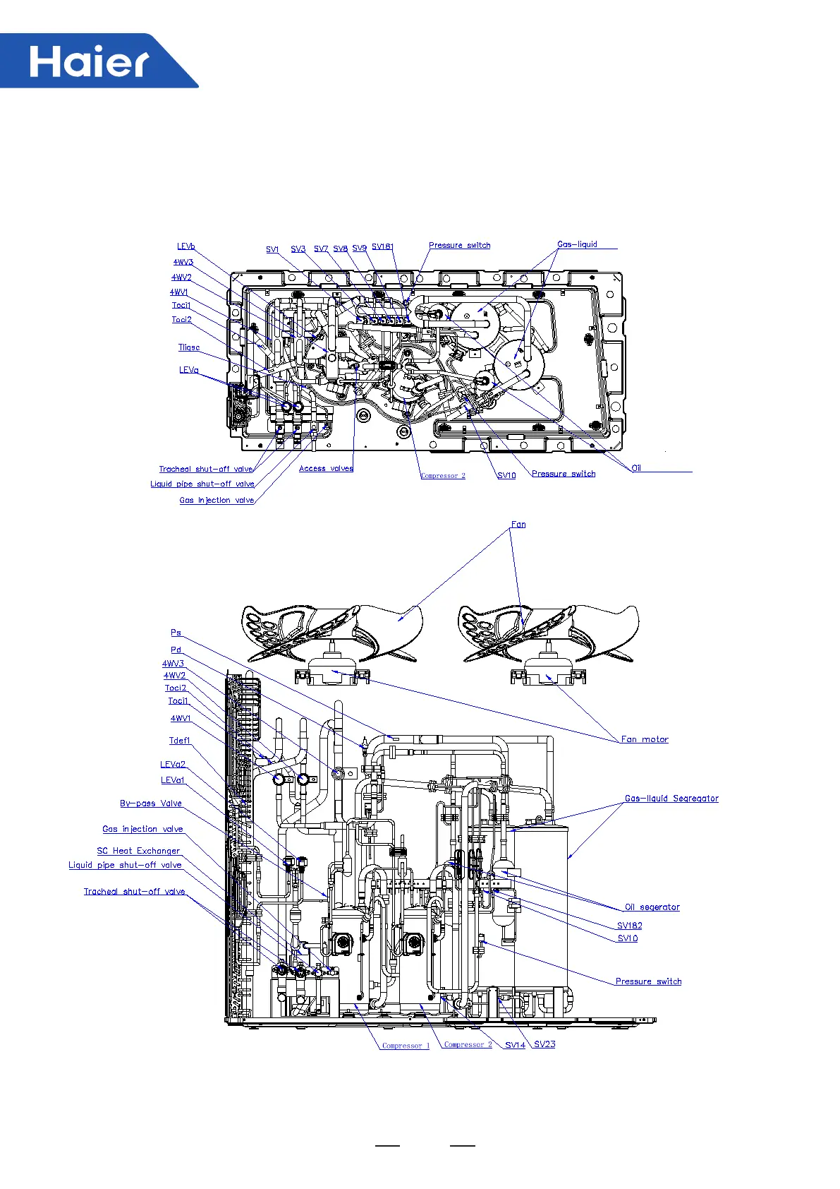
MVHQ168/192/216/240ME2CA
MVHQ168/192/216/240ME4CA

Table of Contents

Related product manuals