EasyManua.ls Logo

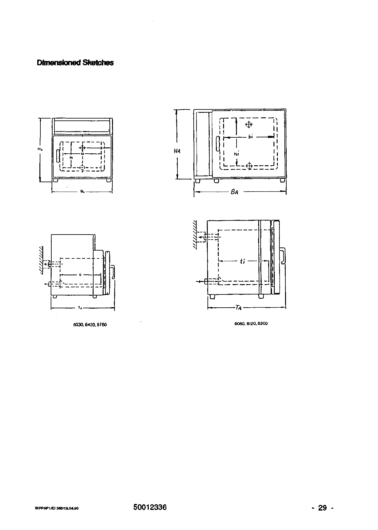
Heraeus T 6120 - Dimensioned Sketch

Default Icon
Print Icon
To Next Page IconTo Next Page
To Next Page IconTo Next Page
To Previous Page IconTo Previous Page
To Previous Page IconTo Previous Page
Loading...
Dimensioned Sketches
m
1
1
1
1
I, i;
1
U
1
f\
u
TA
1
I
1
1
1
1
J
6030.6420.6760
6060.6120.6200
WPP
AP1/1D
388/19.04.00 50012336
- 29 -

Related product manuals