EasyManua.ls Logo

Hitachi SJ700B SERIES - Page 28

Hitachi SJ700B SERIES
74 pages
To Next Page IconTo Next Page
To Next Page IconTo Next Page
To Previous Page IconTo Previous Page
To Previous Page IconTo Previous Page
Loading...
Chapter 2 Installation and Wiring
2 - 16
Reference: Leakage current by inverter with model EMC filter enabled or disabled (reference data)
The table below lists the reference currents that may leak from the inverter when the internal EMC filter is enabled or disabled.
(Leakage current is in proportion to the voltage and frequency of input power.)
Note that the values listed in the table below indicate the reference currents leaking from the inverter alone. The values exclude
current leakage from external devices and equipment (e.g., power cables).
The drive in the range from 90kW to 160kW doesn't have the switch to activate and deactivate the internal EMC filter.They complies
EMC directive C3 level in standard condition.
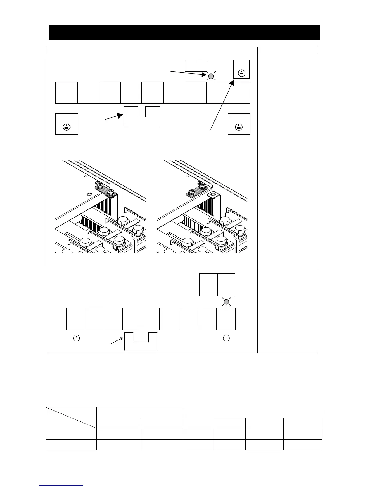
Terminal layout Inverter model
R
(L1)
S
(L2)
T
(L3)
PD
(+1)
P
(+)
N
(-)
U
(T1)
V
(T2)
W
(T3)
R0 T0
charge lump
G G
SJ700B-750LFF/LFUF
R0 and T0: M4
Ground terminal: M8
Other terminals: M10
SJ700B-900-1600HFF/
HFUF
R0 and T0:M4
Ground terminal:M8
Other terminal:M10
200 V class model (input power: 200 VAC, 50 Hz) 400 V class model (input power: 400 VAC, 50 Hz)
11kW, 15kW 18.5kW to 75kW 5.5kW 7.5kW to15kW 18.5kW to 75kW 90kW to160kW
Internal EMC filter enabled Ca 48mA Ca 23mA Ca.5mA Ca.95mA Ca.56mA -
Internal EMC filter disabled Ca.0.1mA Ca.0.1mA Ca.0.2mA Ca.0.2mA Ca.0.2mA Ca.0.2mA
When not using the DCL,
do not remove the jumper
from terminals PD and P.
Ground terminal with
jumper (shaded in the
figure) to enable/disable the
EMC filter function
Jumper connecting
Terminals PD and P
G
[Method of enabling/disabling the EMC filter function]
Enabling the EMC filter
(factory setting)
Disabling the EMC filter
R
(L1)
S
(L2)
T
(L3)
PD
(+1)
P
(+)
N
(-)
U
(T1)
V
(T2)
W
(T3)
R0 T0
Jumper connecting terminals
PD and P
Charge lump

Other manuals for Hitachi SJ700B SERIES

Related product manuals