EasyManua.ls Logo

Honeywell ControlEdge 900A16-0103 - Hardware Installation and Wiring

Honeywell ControlEdge 900A16-0103
126 pages
Print Icon
To Next Page IconTo Next Page
To Next Page IconTo Next Page
To Previous Page IconTo Previous Page
To Previous Page IconTo Previous Page
Loading...
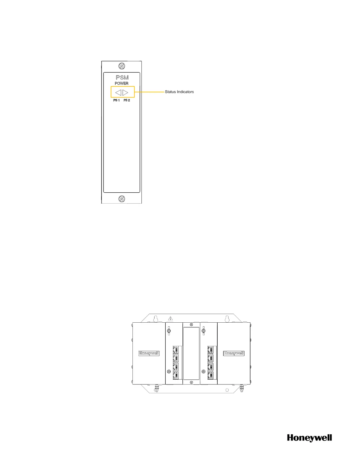
Figure 3-6: Power Status Module
Installing the assembly
This section introduces you to mount the assembly.
1. Mount the rack in the enclosure.
2. Check if your configuration needs a redundant controller.
l If yes, assemble the redundant CPM rack.
a. Insert the power supplies in the slots in the rack.
b. Insert the CPMs in the rack, adjacent to the power supplies.
c. Insert the filler block cover in the middle slot.
l If no, assemble I/O racks, take the 8-slot I/O rack as an
24
Chapter 3 - Hardware

Table of Contents

Related product manuals