EasyManua.ls Logo

Honeywell HPF-PS10E - B.6: AC Trouble Reporting with a Conventional FACP

Honeywell HPF-PS10E
52 pages
Print Icon
To Next Page IconTo Next Page
To Next Page IconTo Next Page
To Previous Page IconTo Previous Page
To Previous Page IconTo Previous Page
Loading...
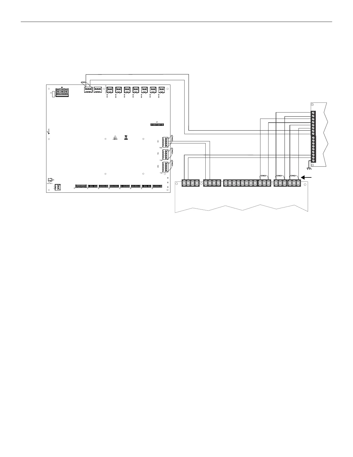
Application Examples AC Trouble Reporting with a Conventional FACP
B.6 AC Trouble Reporting with a Conventional FACP
In this application, the HPF-PS is being used with a conventional FACP that does not have a type-coded input zone for AC Power loss with
a delay. AC Trouble Delay on the HPF-PS must be set to none (S1-7 ON, 8 ON). AC Fail delay timers must be set on the DACT. The DACT
must be installed in close proximity to the conventional FACP so the audible and visual signaling can be given locally at the FACP as
required by UL 864.
The following notes apply to Figure B.6.
Wiring from the power supply to the DACT must be in metal conduit within 20 feet of the FACP.
Refer to Section 3 for instructions on setting the DIP switches.
Do not loop wires under screw terminals. Break wires to maintain proper supervision.
An End-of-Line Resistor must be installed between terminals 1 and 4 on the input circuits that require wiring supervision. (The ELR
value is dependent on the FACP employed).
Refer to panel/DACT documentation for programming information.
NO NC CNONC C
TB4
TB15
T
B
2
T
B
1
T
B
O
U
T
1
3
6
T
B
O
U
T
1
2
5
T
B
O
U
T
1
1
4
T
B
O
U
T
1
0
3
T
B
O
U
T
9
2
T
B
O
U
T
8
1
AC AC1 2
TB1
TB2
B+ B- B+ B-
1 2NAC NAC
+ - + -
Nonreset
Reset
B+ B- B+ B-
1 2ZONE ZONE
B+ B- B+ B-
3 4ZONE ZONE
C NO NC C NC NO
C NC NO
TROUBLE ALARM SUPV
A- B+ B- A+
A- B+ B- A+
A- B+ B- A+
UL 864 Listed Regulated 24 VDC
Conventional FACP
UL 864
10th Edition
Listed DACT
Channel 1
Channel 2
Channel 3
Channel 4
NAC
+ -
24VDC non-resettable power
+ -
HPF-PS
ELR
ELR
ELRs
Figure B.6 AC Trouble Reporting with a Conventional FACP
48
HPF-PS Series Instruction Manual — P/N LS10227-003HP-E:C 2/2/2022

Table of Contents

Related product manuals