EasyManua.ls Logo

Hotsy 982SS - Page 47

Hotsy 982SS
48 pages
Print Icon
To Next Page IconTo Next Page
To Next Page IconTo Next Page
To Previous Page IconTo Previous Page
To Previous Page IconTo Previous Page
Loading...
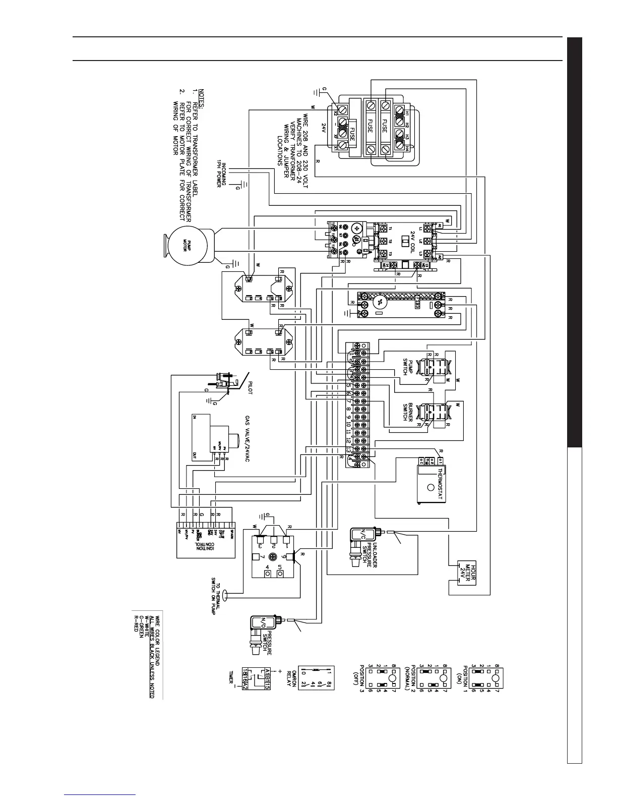
97-6574 • HOTSY 900-1400 GAS FIRED • REV. 10/05
PRESSURE WASHER WARRANTY Wiring Diagram
47
900/1400 1 PH W/ELEC IGN, THERM SHUTDOWN & AUTO START

Related product manuals