EasyManua.ls Logo

Huawei TP482000B Series - Power Distribution Monitoring Unit

Huawei TP482000B Series
107 pages
Print Icon
To Next Page IconTo Next Page
To Next Page IconTo Next Page
To Previous Page IconTo Previous Page
To Previous Page IconTo Previous Page
Loading...
TP482000B V300R002C03 Telecom Power
(TP482000B-N20B1, TP482000B-N20B2,
TP481200B-N20B1, and TP481200B-N20B2)
User Manual
5 Components
Copyright © Huawei Technologies Co., Ltd.
41
Port
Silk Screen
Description
Associated Alarm
ALM6
Dry contact output 6
ALM7
Dry contact output 7
ALM8
Dry contact output 8
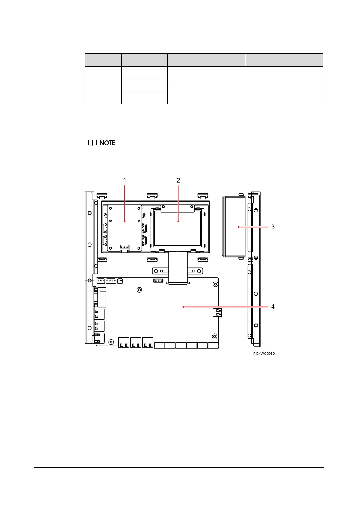
Interior
The following figure shows the internal structure with the cover removed.
Figure 5-6 SMU05A interior
(1) Button board
(2) LCD
(3) Indicator
(4) Main control board
5.2.2 Power Distribution Monitoring Unit
The power distribution monitoring unit is used to monitor AC or DC power distribution. It
provides detection, alarm, and communication functions.

Related product manuals