EasyManua.ls Logo

Ideal Heating LOGIC SYSTEM S15IE - Flue Terminal Position

Ideal Heating LOGIC SYSTEM S15IE
80 pages
Print Icon
To Next Page IconTo Next Page
To Next Page IconTo Next Page
To Previous Page IconTo Previous Page
To Previous Page IconTo Previous Page
Loading...
26
Installation and Servicing
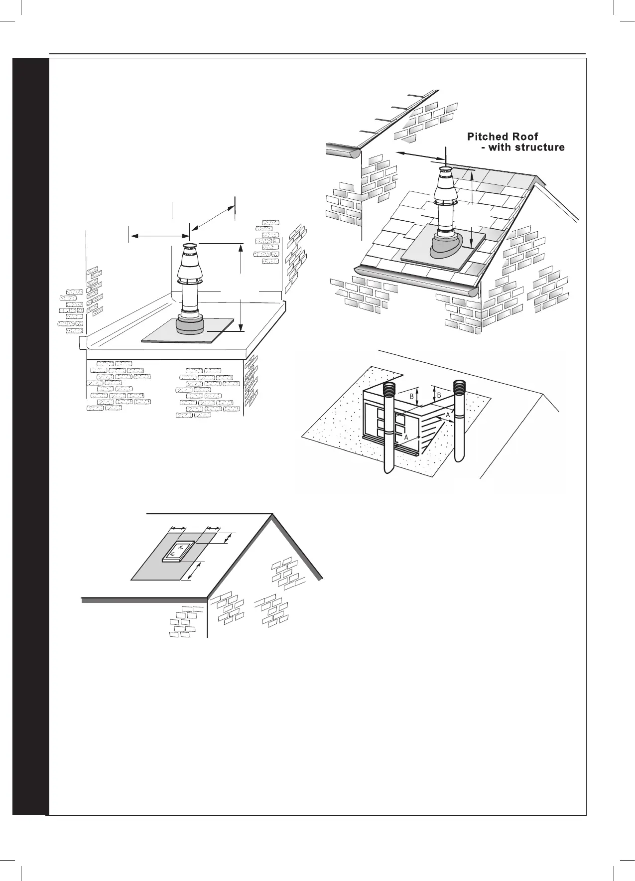
FLUE OUTLET
SECTION 2 - INSTALLATION
rf8394-1
690mm
Fixed
300mm
min
2.13 FLUE TERMINAL POSITION
rf8393-1
300mm
min
300mm
min
625mm
Fixed
Flat roof - with structure
The terminal should be positioned so that products of
combustion can safely disperse at all times.
Pluming may occur at the termination so, where possible,
terminal positions where this could cause a nuisance
should be avoided.
Minimum dimensions are shown below
RF9807
A
A
B
A
A = 600mm
B = 2000mm
The flue terminal shall not penetrate the shaded area of the roo
f
Note.
The equivalent ue length
resistance of the elbow kits are:
90
o
elbow kit = 1m
45
o
elbow kit = 0.6m
If chimney penetrates dotted area such that A is less
than 300mm, B shall not be less than 300mm.
Where two or more vertical fanned draught chimney congurations terminate in close
proximity at the same height, they shall be separated by at least 300mm. Where
any one vertical outlet is more than 300mm above the other, then they shall be
separated by at least 1500mm.
Where any vertical fanned draught chimney conguration outlet is within 2000mm
measured horizontally of an opening window, then it shall be at least 300mm
above the opening.
Pitched roof - with velux window
or opening

Table of Contents

Related product manuals