EasyManua.ls Logo

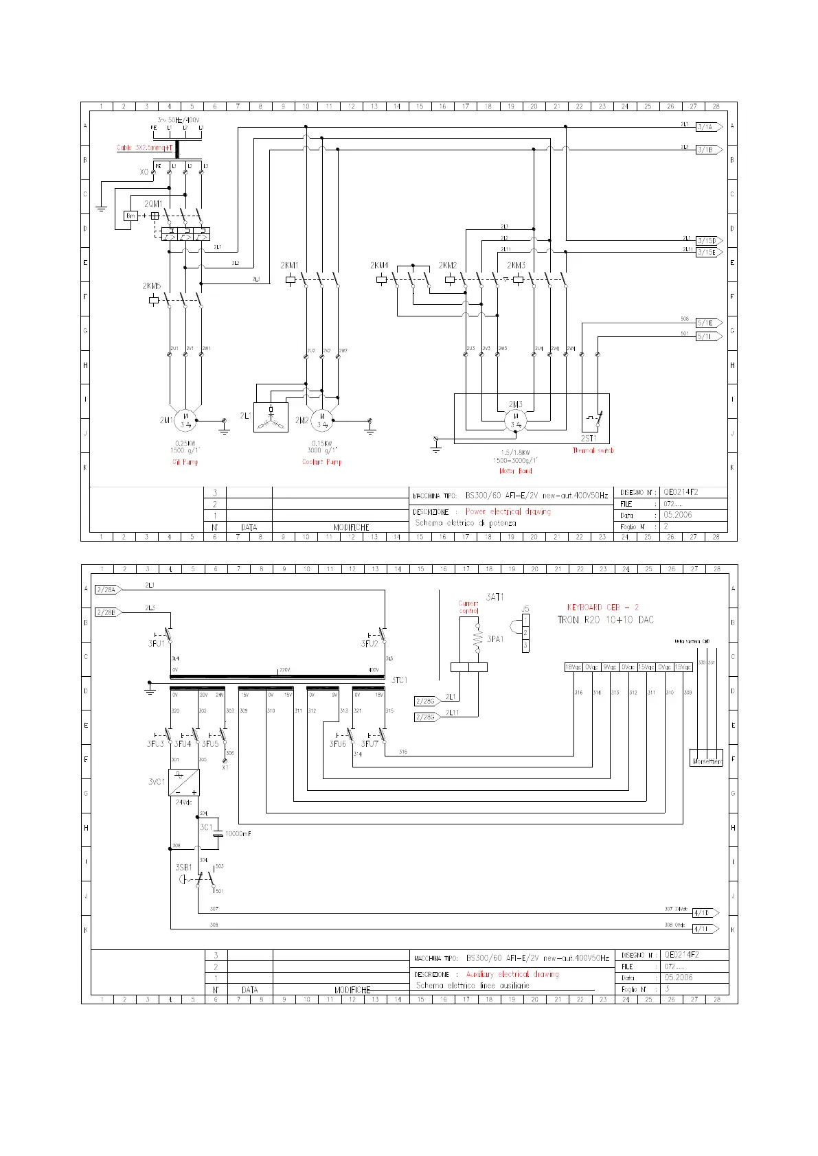
IMET Spa BS300/60 AFI-E - Maintenance - for qualified technicians; Electrical Schematics

IMET Spa BS300/60 AFI-E
61 pages
Print Icon
To Next Page IconTo Next Page
To Next Page IconTo Next Page
To Previous Page IconTo Previous Page
To Previous Page IconTo Previous Page
Loading...
TRADUCTION OF THE ORIGINAL INSTRUCTIONS FOR USE
BS 300/60 AFI-E ED.2010 rev.00
37/61