EasyManua.ls Logo

Immergas VICTRIX 75 - Cascade Installation Example; Cascade System Diagram Details

Immergas VICTRIX 75
48 pages
Print Icon
To Next Page IconTo Next Page
To Next Page IconTo Next Page
To Previous Page IconTo Previous Page
To Previous Page IconTo Previous Page
Loading...
44
STV75 ed 01/08 VICTRIX 75
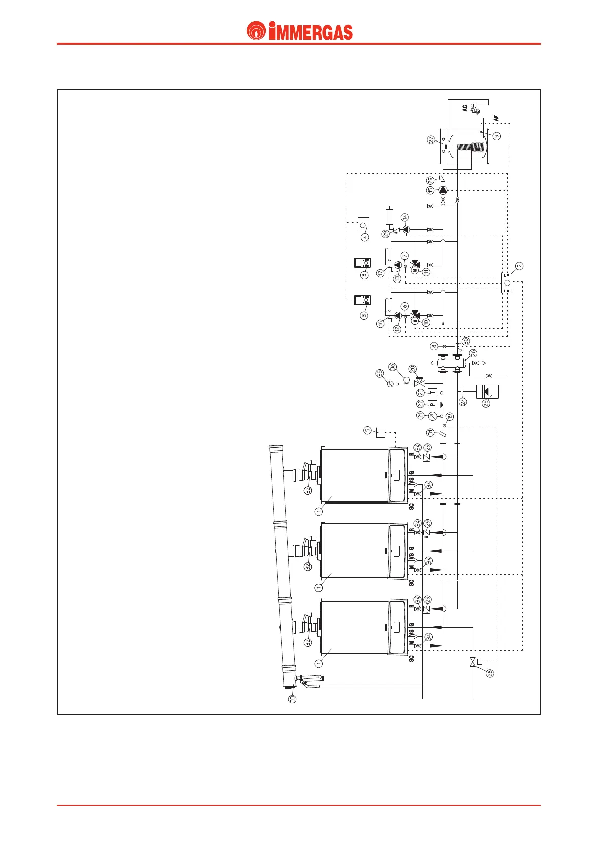
Legend:
1 - VICTRIX 75 generator
2 - Cascade and zone regulator
3 - Zone regulator
4 - Modulating room thermostat
5 - External probe
6 - No.1 zone temperature probe (CMI-1)
7 - No. 2 zone temperature probe (CMI-2)
8 - Shared delivery probe
9 - Water tank temperature probe
10 - No.1 zone mixing valve (CMI-1)
11 - No. 2 zone mixing valve (CMI-2)
12 - No.1 zone central heating circuit pump (CMI-1)
13 - No. 2 zone central heating circuit pump (CMI-2)
14 - No. 3 zone direct circuit pump (HC)
15 - Water tank supply pump
16 - No.1 zone safety thermostat (CMI-1)
17 - No.2 zone safety thermostat (CMI-2)
ZONE 1
(MC 1)
ZONE 2
(MC 2)
ZONE 3
(HC)
19 - On-o fuel valve bulb
20 - ISPESL approved cock with pressure gauge
21 - ISPESL approved thermometer
22 - ISPESL approved manual reset pressure switch
23 - ISPESL approved manual reset thermostat
24 - Expansion vessel coupling
25 - Expansion vessel
26 - Manifold/mixing device
27 - External water tank unit
28 - Fuel on-o valve
29 - On-way valve
30 - Sludge collecting system lter
31 - ermometer holding pocket
32 - Flue stream adjusting device
33 - Condensate drain pipe
34 - System on-o cock
35 - ISPESL approved manometer
36 - Water hammer reducing loop
Example of installing VICTRIX 75 in a cascade.
e above example refers to three boilers installed in a cascade,
equipped with an ISPESL safety kit and a mixing manifold
(26). e system consists of two, low temperature mixed zones,
a high temperature zone and a storage tank for the production
of domestic hot water.
e system is controlled by a cascade regulator (2) that controls
the storage tank directly, two zone managers (3) that control the
two low-temperature zones and a modulating room thermostat
(4) that controls the high temperature zone.
Technical DocumentationTechnical Documentation

Related product manuals