EasyManua.ls Logo

Immergas Victrix Tera 28 1 - Minimum installation distances.

Immergas Victrix Tera 28 1
68 pages
Print Icon
To Next Page IconTo Next Page
To Next Page IconTo Next Page
To Previous Page IconTo Previous Page
To Previous Page IconTo Previous Page
Loading...
2
3
INSTALLERUSER
MAINTENANCE TECHNICIAN
8
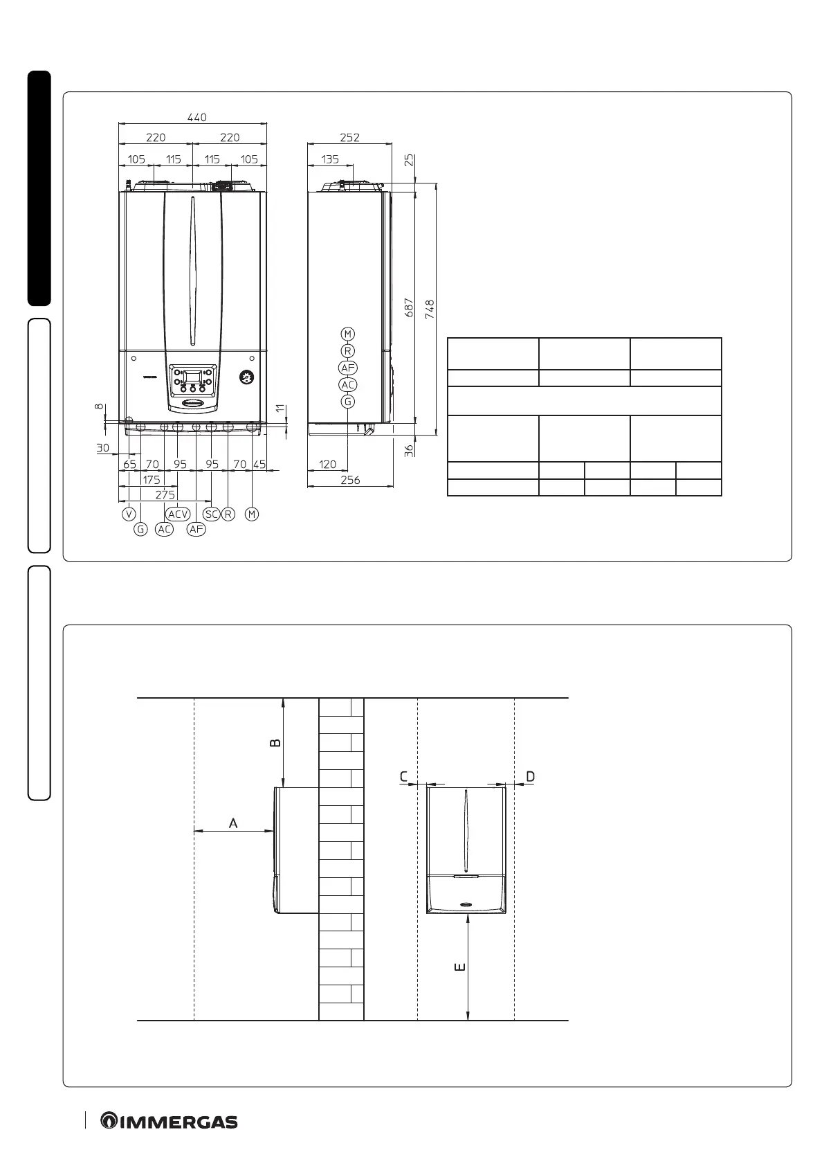
1.2 MAIN DIMENSIONS.
Key:
A - 450 mm
B - 350 mm
C - 30 mm
D - 30 mm
E - 350 mm
1.3 MINIMUM INSTALLATION DISTANCES.
Key:
V - Electrical connection
G - Gas supply
AC - Domestic hot water outlet
ACV - Solar valve kit DHW inlet (optional)
AF - Domestic hot water inlet
SC - Condensate drain (minimum internal diameter Ø 13 mm)
M - System ow
R - System return
Height
(mm)
Width
(mm)
Depth
(mm)
748 440 256
CONNECTIONS
GAS
WATER
DOMESTIC
CW
SYSTEM
G AC AF R M
3/4” 1/2” 1/2” 3/4” 3/4”

Table of Contents

Other manuals for Immergas Victrix Tera 28 1

Related product manuals