EasyManua.ls Logo

IMO Precision Controls Jaguar VXS - Control Circuits and Terminals

Default Icon
67 pages
Print Icon
To Next Page IconTo Next Page
To Next Page IconTo Next Page
To Previous Page IconTo Previous Page
To Previous Page IconTo Previous Page
Loading...
15
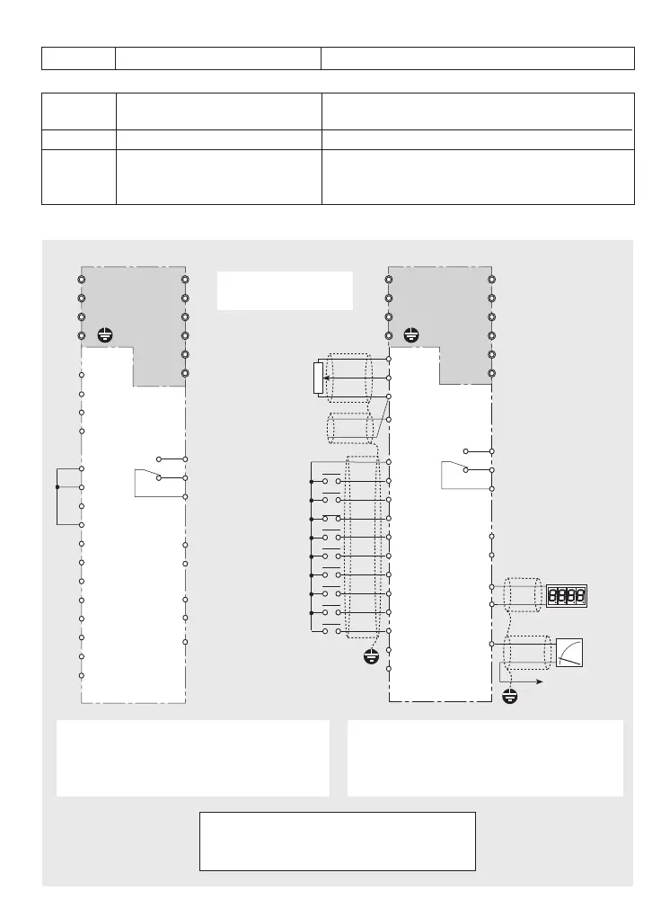
5.5 Control Circuits and Terminals
13
12
11
FWD
REV
THR
CM
X1
X2
X3
X4
BX
RST
P24
CMC
Y1E
30C
30B
30A
Trip
relay
Open collector O/P
P24
CM
FMP
FMA
Pulse O/P
0-10V analog O/P
Keypad Operation
Terminal Operation
Analog voltage
freq. ref. input
0V to 10V
(Pot. 1k, 1W)
Programmable
digital
output
+
-
Analog current
freq. ref. input
(4-20mA)
Programmable
analog
output
to terminal 11
(+)
N/C
C1
DB
P1
V
W
U
[L2]
[L3]
[L1]
(+)
DB
P1
V
W
U
Trip
relay
NOTE 2
Open emitter O/P
Refer to Control
O/P Circuit, p.13
Blank
L
N
[L2]
[L3]
[L1]Blank
L
N
NOTE 1
13
12
11
FWD
REV
THR
CM
X1
X2
X3
X4
BX
RST
P24
CMC
Y1E
30C
30B
30A
P24
CM
FMA
FMP
C1
NOTE 1
Data in […] applies
to 3-phase inverters
CAUTION
Do not short-circuit terminal P24 to either 11
or CM. Damage may result.
NOTES
1 Terminal DB not available for VXS20-1.
2 Input to terminal THR, (N/C contact)
from external protection relay.
TRIP/ALARM RELAY
Relay is shown with the inverter in either the
power-off or power-on state, condition
‘healthy’.
5.4 Terminals Functions List continued
Terminal Terminal Function Description
Control Outputs
Y1E Open emitter output; 50mA max.
Six different functions are available according to
preset selection; refer to Function 54.
CMC Reserved for Y1E output only Refer to the illustration on page 13.
30A, 30B,
When no trip, N/O circuit 30A-30C; N/C circuit
30C
Alarm output, all trips 30B-30C. When inverter trips, 30A-30C closes.
Rating 48V DC, 0.3A.