EasyManua.ls Logo

Inovance MD290T45G/55P - Page 36

Inovance MD290T45G/55P
350 pages
To Next Page IconTo Next Page
To Next Page IconTo Next Page
To Previous Page IconTo Previous Page
To Previous Page IconTo Previous Page
Loading...
2. Mechanical Installation
- 35 -
2
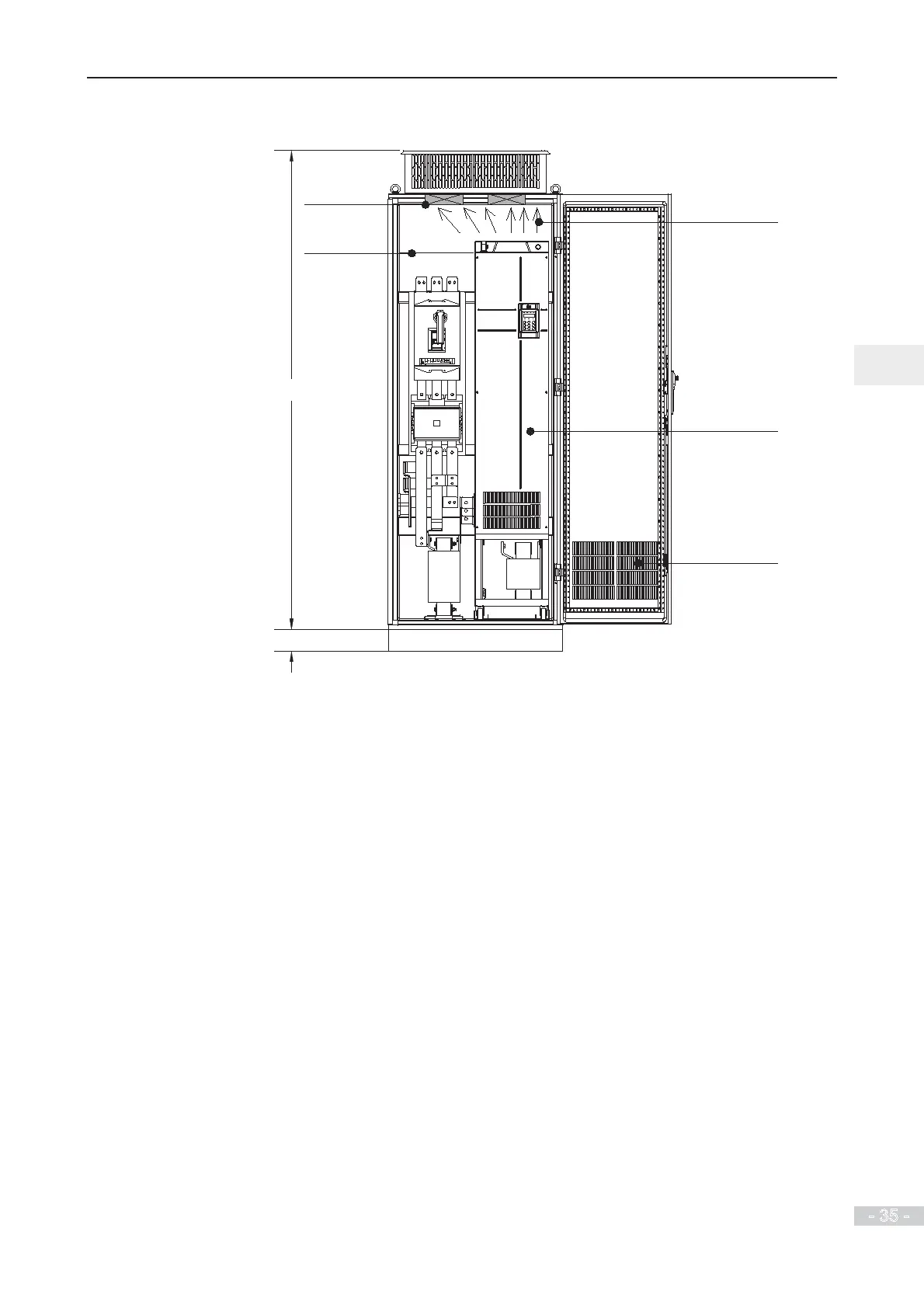
Figure 2-12 Cabinet with fan on the top
Air inlet of
front door
Isolation
barrier
Fan
Ventilation airflow
of MD290
MD290
100
2200

Table of Contents

Related product manuals