EasyManua.ls Logo

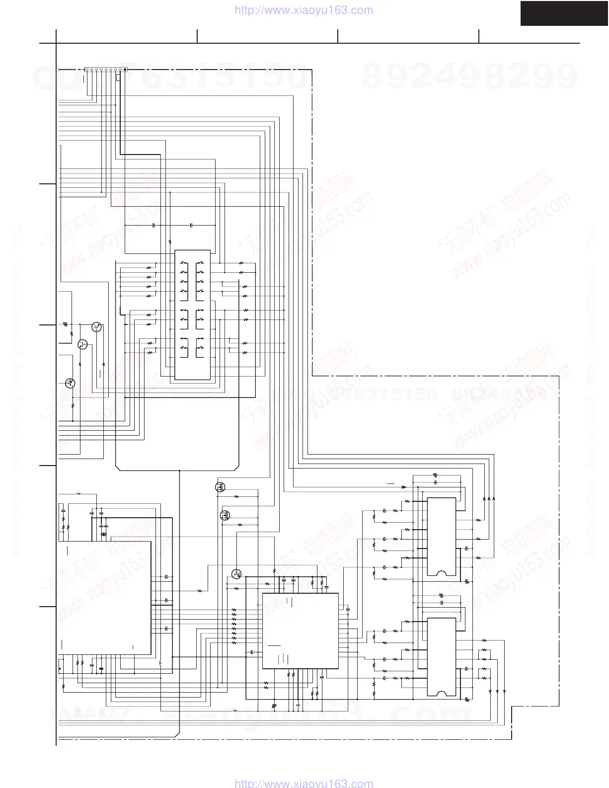
Integra DTR-6.5 - SCHEMATIC DIAGRAM 8 - Video Section Continued

Integra DTR-6.5
119 pages
Print Icon
To Next Page IconTo Next Page
To Next Page IconTo Next Page
To Previous Page IconTo Previous Page
To Previous Page IconTo Previous Page
Loading...
DTR-6.5
SCHEMATIC DIAGRAM 8 Video section
Q2108
2SK3019
Q2109
2SK3019
P2005
TO NADG-8366
(PART-9)
STB
VSS VDD
GND CL
DATA
Q2011
TC9164AF
1
2
3
4
5
6
7
8
9
10
11
12
13
14 15
16
17
18
19
20
21
22
23
24
25
26
27
28
DVDD
NC
NC
NC
DVDD
DGND
NC
NC
NC
NC
NC
NC
DGND
NC
NC
NC
DVDDIO
DGND
NC
NC
DGND
Q2101
ADV7183A
9
11
13
14
15
16
17
18
25
30
31
34
35
63
65
69
70
71
72
77
78
ALSB66
DGND
3
DVDD
10
DVDDIO
4
ELPF
37
FIELD80
HS
2
LLC1
27
LLC2
26
P0
33
P1
32
P10
6
P11
5
P1276
P1375
P1474
P15
73
P2
24
P3
23
P4
22
P5
21
P6
20
P7
19
P8
8
P9
7
PVDD
38
SCLK68
SDA67
SFL
12
VS
1
XTAL
29
XTAL1
28
OE79
PWRDN
36
RESET64
FIELD
GND
VAA
VAA
VAA
GND
VAA
VAA
GND
VAA
GND
GND
VAA
Q2104
ADV7172
18
19
26
27
30
31
32
33
34
46
47
48
ALSB
17
CLAMP
42
CLOCK
13
COMP1
36
COMP2
23
CSO_HSO10
DACA
35
DACB
11
DACC
29
DACD
28
DACE
25
DACF
24
GND12
P02
P13
P24
P35
P46
P57
P68
P79
PAL_NTSC
43
RSET1
38
RSET2
22
SCLOCK
20
SCRESET/RTC
39
SDATA
21
TTX
41
TTXREQ
40
VAA1
VREF
37
BLANK
16
HSYNC
14
RESET
44
VSO
45
VSYNC/
15
-VCC2
MUTE2
VOUT3
DRCTL
VOUT2
GND
VOUT1
+VCC
NFB3
VIN3+
-VCC1
NFB2
VIN2+
MUTE1
NFB1
VIN1+
Q2106
LA7106M
1
2
3
4
5
6
7
89
10
11
12
13
14
15
16
-VCC2
MUTE2
VOUT3
DRCTL
VOUT2
GND
VOUT1
+VCC
NFB3
VIN3+
-VCC1
NFB2
VIN2+
MUTE1
NFB1
VIN1+
Q2107
LA7106M
1
2
3
4
5
6
7
89
10
11
12
13
14
15
16
Q2105
RN1401
Q
2010
R
N2402
X2101
27MHZ
L2102
220K
NCH-1477
L2104
022K
NCH-1471
L2105
022K
NCH-1471
2
005
12-GR
Q2006
RN1443
Q2007
RN1443
R2111 100
R2112
100
R2188
82
R2189
82
R2190
82
R2191
82
R2192
82
R2070
22
R2187
82
R2181
82
R2161
100
R2186
82
R2084
100K
R2079
100K
R2085
100K
R2086
100K
R2142
1.2K
R2141
1.2K
R2183
82
R2182
82
R2184
82
R2185
82
R2179
R2180
R2175
0
R2174
75
R2173
75
R2166
100K
R2165
100
R2164
100K
R2162
100K
R2163
100
R2176
75
R2177
75
R2178
75
R2172
100K
R2171
100
R2170
100K
R2168
100K
R2169
100
R2167
100
R2129
33
R2080
100K
R2081
100K
R2083
100K
R2082
100K
R2110
2.2K
R2113
2.2K
R2132
100
R2133
100
R2130
4.7K
R2131
4.7K
100
R2145
4.7K
R2143
100
R2074
100K
R2073
100K
R2072
100K
R2071
100K
R2075
100K
R2076
100K
R2077
100K
R2078
100K
R2065
10K
R2135
1.2K
R2134
1.2K
R2116
680
1K
R2114
4.7K
R2144
33
R2128
33
R2127
33
R2126
33
R2125
33
R2124
33
R2123
33
R2122
33
R2121
33
47K
R2045
10K
C2177
100/6.3
C2180
100/6.3
C2181
100/6.3
C2184 100/6.3
C2164
10/16
C2053
100/6.3
C2176
105K
C2175
105K
C2174
105K
C2173
105K
C2172
105K
C2171
105K
C2131
103Z
C2124
103Z
C2189
104Z
C2188
104Z
C2130
104Z
C2186
104Z
C2185
104Z
C2123
104Z
C2072
104Z
C2161
104Z
C2179
104Z
C2178
104Z
C2182
104Z
C2183 104Z
C2162
104Z
C2071
104Z
C2163
104Z
C2141
104Z
C2142
104Z
C2132
823J
C2126
104Z
C2128
120J
C2129
120J
104Z
+5VVD
VDGND
-5VVD
+12V
GND
-12V
VMUT
SPRLSB
SPRLF
R-S1
R-S2
R-S3
R-S4
L-S5 R-S5
L-S6 R-S6
R-S6
L-S7 R-S7
R-S8
R-S5
L-S8
SDET
SDET
+5VVD
SCL
VMUT
-5VVD
DVDD
SDA
CR
CB
Y
VDRST
DVDDIO
A
1
2
3
4
5
BCD
w
w
w
.
x
i
a
o
y
u
1
6
3
.
c
o
m
Q
Q
3
7
6
3
1
5
1
5
0
9
9
2
8
9
4
2
9
8
T
E
L
1
3
9
4
2
2
9
6
5
1
3
9
9
2
8
9
4
2
9
8
0
5
1
5
1
3
6
7
3
Q
Q
TEL 13942296513 QQ 376315150 892498299
TEL 13942296513 QQ 376315150 892498299
http://www.xiaoyu163.com
http://www.xiaoyu163.com

Related product manuals