EasyManua.ls Logo

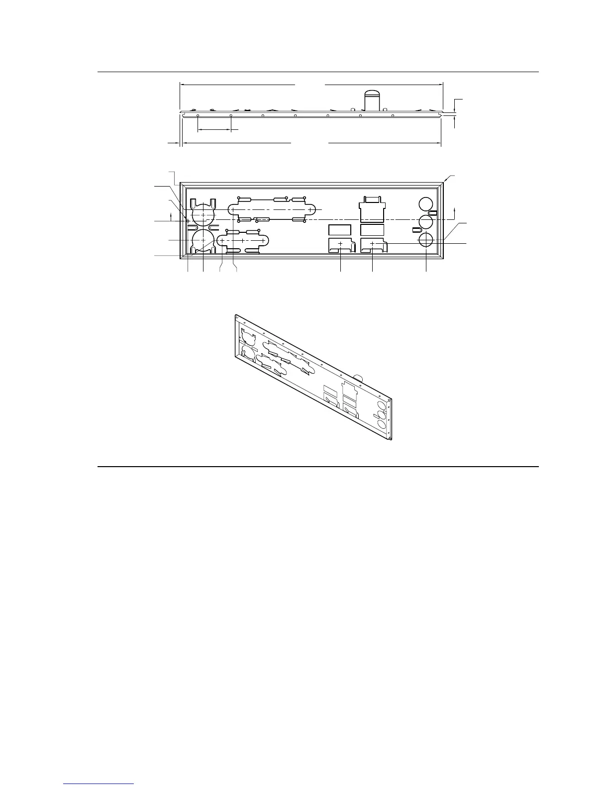
Intel DESKTOP BOARD D955XBK - I;O Shield Dimensions for Boards with the 6-Channel (5.1) Audio Subsystem

Intel DESKTOP BOARD D955XBK
94 pages
To Next Page IconTo Next Page
To Next Page IconTo Next Page
To Previous Page IconTo Previous Page
To Previous Page IconTo Previous Page
Loading...
Intel Desktop Board D955XBK Technical Product Specification
70
Pictorial
View
20 ± 0.254 TYP
[0.787 ± 0.10]
162.3 REF
[6.390]
159.2 ± 0.12
[6.268 ± 0.005]
1.6 ± 0.12
[0.063 ± 0.005]
1.55 REF
[0.061]
8x R 0.5 MIN
12.04
[0.474]
7.012
[0.276]
Ø 1.00
[0.039]
0.00
[0.00]
11.811
[0.465]
22.45
[0.884]
8.805
[0.347]
93.74
[3.690]
113.63
[4.473]
146.88
[5.783]
20.283
[0.799]
0.00
[0.00]
26.911
[1.059]
A
A
11.81
[0.465]
14.17
[0.558]
OM17815
Figure 26. I/O Shield Dimensions for Boards with the 6-Channel (5.1) Audio Subsystem

Table of Contents

Related product manuals