EasyManua.ls Logo

INVT GD350-011G-4

INVT GD350-011G-4
341 pages
To Next Page IconTo Next Page
To Next Page IconTo Next Page
To Previous Page IconTo Previous Page
To Previous Page IconTo Previous Page
Loading...
Goodrive350 series high-performance multi-function inverter Appendix C
-302-
W1
W2
H1 H2
W3
D1
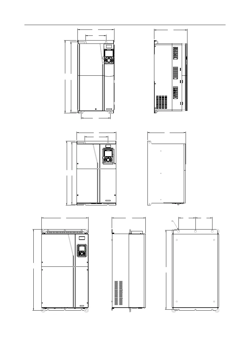
Fig C.5 Wall-mounting diagram of inverters of 380 V, 45 to 75 kW
W1
D1
W2
H1 H2
Fig C.6 Wall-mounting diagram of inverters of 380 V, 90 to 110 kW
W1
H1
D1
W2 W2
6- ø11.0
H2
Fig C.7 Wall-mounting diagram of inverters of 380 V, 132 to 200 kW

Table of Contents

Related product manuals