EasyManua.ls Logo

INVT GD350-1R5G-4

INVT GD350-1R5G-4
341 pages
To Next Page IconTo Next Page
To Next Page IconTo Next Page
To Previous Page IconTo Previous Page
To Previous Page IconTo Previous Page
Loading...
Goodrive350 series high-performance multi-function inverter Appendix D
-311-
Appendix D Optional peripheral accessories
D.1 What this chapter contains
This chapter describes how to select optional accessories of Goodrive350 series inverters.
D.2 Wiring of peripheral accessories
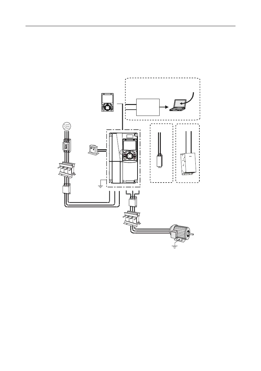
The following figure shows the external wiring of a Goodrive350 series inverter.
Power supply
Breaker
Input filter
Input reactor
Earth
DC reactor
LCD keypad
P1
+
+
-
PB
Brake
resistor
Brake unit
PC
RS485
RS232
converter
Output filter
Output reactor
Motor
Earth
+
Upper PC
software
485+
485-
Standard
Note:
Inverters of 380 V, 37 kW or lower are equipped with built-in brake units, and inverters of 45 kW
to 110 kW can be configured with optional built-in brake units.
Inverters of 380 V, 18.5 kW to 110 kW are equipped with built-in DC reactors.
P1 terminals are equipped only for inverters of 380 V, 132 kW or higher, which enable the
inverters to be directly connected to external DC reactors.
P1 terminals are equipped for all inverters of the 660 V series or higher, which enable the
inverters to be directly connected to external DC reactors.
The brake units INVT's DBU series standard brake units. For details, see the DBU operation
manual.

Table of Contents

Related product manuals