EasyManua.ls Logo

INVT Goodrive170-PV Series - Page 13

INVT Goodrive170-PV Series
76 pages
Print Icon
To Next Page IconTo Next Page
To Next Page IconTo Next Page
To Previous Page IconTo Previous Page
To Previous Page IconTo Previous Page
Loading...
Goodrive170-PV Series Solar Pump Inverter Installation guidelines
-9-
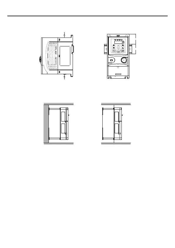
3.1.3 Installation mode
(1) The inverters of 2.2kW4kW support wall mounting and rail mounting.
W
H
a) Wall mounting b) Rail mounting
Note: The minimum space of A and B is 100mm. H is 36.6mm and W is 35.0mm.
(2) The inverters of 5.5kW support wall mounting and flange mounting.
a) Wall mounting b) Flange mounting
1. Mark the position of the installation hole. See appendix for the position of installation
hole.
2. Mount the screws or bolts onto the designated position.
3. Put the inverter on the wall.
4. Tighten the fixing screws on the wall.

Related product manuals