EasyManua.ls Logo

ISA T 2000 - Page 30

Default Icon
110 pages
Print Icon
To Next Page IconTo Next Page
To Next Page IconTo Next Page
To Previous Page IconTo Previous Page
To Previous Page IconTo Previous Page
Loading...
DOC. MIE11110 Rev. 5
Page
30
of
110
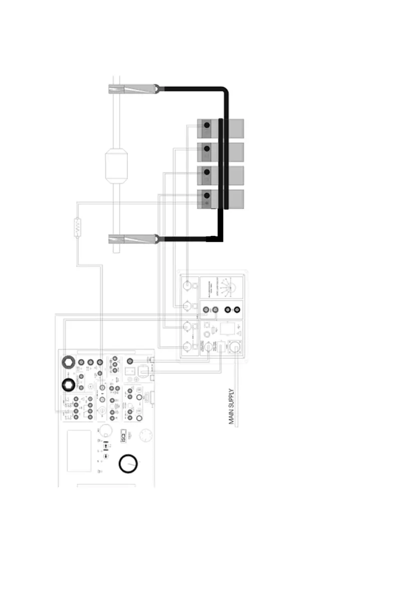
The following picture shows the option components in the case of
a transformer only.

Related product manuals