EasyManua.ls Logo

ISA T 2000 - Appendix: Dynamic Tap Changer Testing

Default Icon
110 pages
Print Icon
To Next Page IconTo Next Page
To Next Page IconTo Next Page
To Previous Page IconTo Previous Page
To Previous Page IconTo Previous Page
Loading...
DOC. MIE11110 Rev. 5
Page
107
of
110
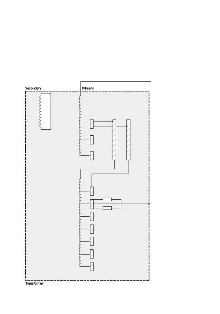
APPENDIX: DYNAMIC TAP CHANGER TESTING
The test performed by T 3000 has the purpose of allowing the
verification of the tap changer device: the following design shows
a possible configuration of the power transformer and TAP
changer..
PRIMARY
FIXED END
PRIMARY
ADJUSTED END

Related product manuals