EasyManua.ls Logo

Jackle 150 - Circuit Diagrams

Default Icon
25 pages
Print Icon
To Next Page IconTo Next Page
To Next Page IconTo Next Page
To Previous Page IconTo Previous Page
To Previous Page IconTo Previous Page
Loading...
Plasma CUTTER 150
Operating Manual Page 19
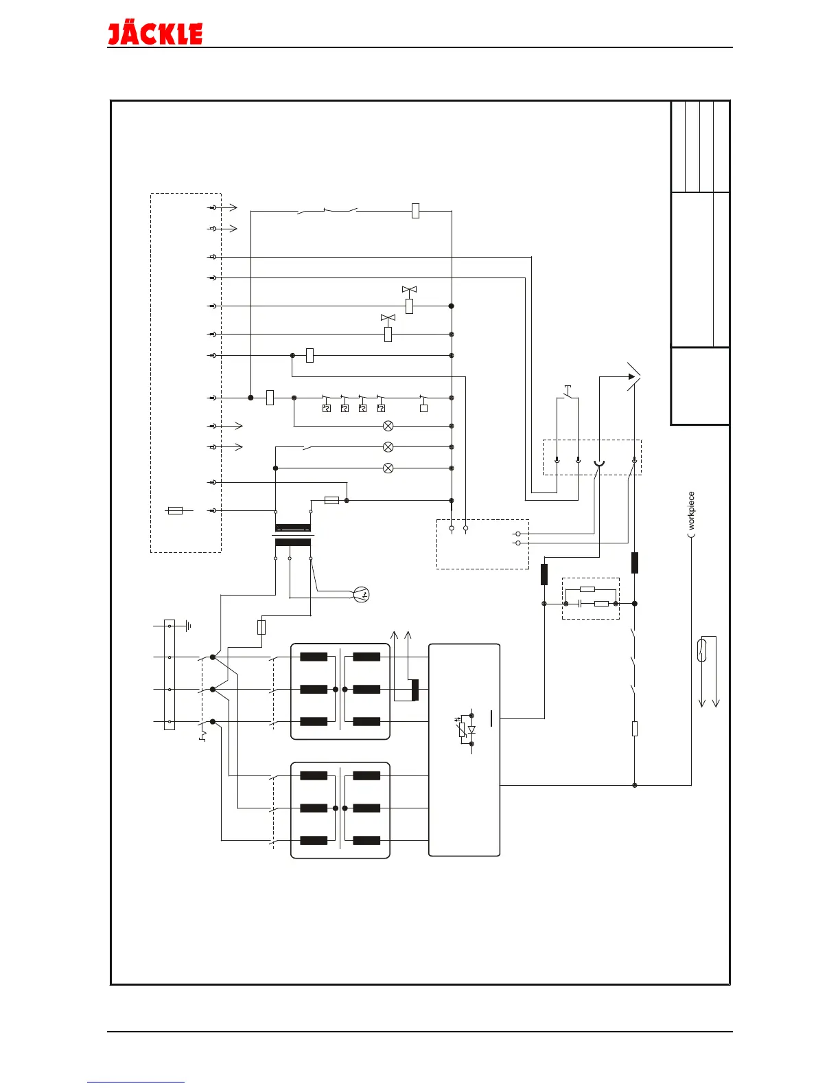
14. Circuit Diagrams
2 4 6
1 3 5
K3
T3
~ ~
H
o
2
4
V
A
2
+
K
1
.
3
-
2
.
4
-
2
K
2
.
1
.
2
A
2
,
3
A
1
A
2
K
3
2 4 6
1 3 5
K1
T1
F1
T 2 A
31 5
2 4 6
V1
Q1
P
S
3
Y
1
Y
2
A
1
A
2
K
1
A
1
A
2
K
2
L3
H
1
H
2
H
3
T2
400 V
230 V
0 V
24 V
0 V
U
L1 L2 L3 PE
L
3
S
4
A
1
M
M1
K
1
.
3
-
1
.
4
-
1
T 1 A
4 1
1
1
1
2
6
7
5
8
2
3
9
1
0
P
L
3
L3
HB
F2
T4A
Main cable
4G6
S
2
S
2
S
2
S
2
U1 V1 W1 U1 V1 W1
U2 V2 W2 U2 V2 W2
(
B
a
c
k
)
(
F
r
o
n
t
)
S
5
R3
R2 C1
A3
L1
6 5 3 4 2 1
K2R1
S4
S4
L2
N
a
m
e
:
D
a
t
e
:
N
r
.
:
c
i
r
c
u
i
t
d
i
a
g
r
a
m
P
l
a
s
m
a
C
u
t
t
e
r
1
5
0
4
0
0
V
3
~
5
0
H
z
t
o
r
c
h
S
1
S
c
h
w
e
i
ß
-
u
n
d
S
c
h
n
e
i
d
t
e
c
h
n
i
k
S
p
i
e
l
e
r
0
4
.
0
2
.
0
9
c
e
n
t
r
a
l
-
c
o
n
n
e
c
t
i
o
n
P
i
l
o
t
S
5
R
o
t
a
t
i
n
g
s
w
i
t
c
h
7
5
/
1
5
0
A
T
o
r
c
h
t
r
i
g
g
e
r
S
1
M
a
n
o
m
e
t
r
i
c
s
w
i
t
c
h
(
a
i
r
)
S
3
T
1
,
T
3
W
e
l
d
i
n
g
t
r
a
n
s
f
o
r
m
e
r
s
R
e
c
t
i
f
i
e
r
V
1
Y
2
S
o
l
e
n
o
i
d
v
a
l
v
e
f
u
l
l
p
r
e
s
s
u
r
e
T
h
e
r
m
a
l
s
w
i
t
c
h
t
r
a
n
s
f
o
r
m
e
r
S
2
S
4
T
2
Y
1
S
o
l
e
n
o
i
d
v
a
l
v
e
d
r
o
p
p
e
d
p
r
e
s
s
u
r
e
R
e
e
d
-
c
o
n
t
a
c
t
P
R
2
A
u
x
i
l
i
a
r
y
t
r
a
n
s
f
o
r
m
e
r
P
C
-
1
5
0
.
0
0
1
J
Ä
C
K
L
E
A3
HF protection PCB P1-H
L3 Current transformer
Main switchQ1
M1 Fan
R1 Pilot resistor 5,4 Ohm
H1 Mains control lamp
H3 Malfunction lamp
Pilot contactor
H2
K1,3
K2
L1 HF protection choke
Mains contactor
Pilot lamp
A1 Control PCB
A2
Ignition unit
SIG 3.2
Fuse primary 2AF1
PL 3
L2 Choke PLD 1
Fuse secondary 4AF2
Circuit diagram Plasma CUTTER 150

Related product manuals