EasyManua.ls Logo

JCM EBA-40 - UNIT DIMENSIONS; Outside Dimensions

JCM EBA-40
46 pages
Print Icon
To Next Page IconTo Next Page
To Next Page IconTo Next Page
To Previous Page IconTo Previous Page
To Previous Page IconTo Previous Page
Loading...
P/N 960-000173R_Rev. A {EDP #229278} © 2013, JAPAN CASH MACHINE CO., LTD.
33
EBA
®
Series Banknote Acceptor (EBA-40) Integration Guide
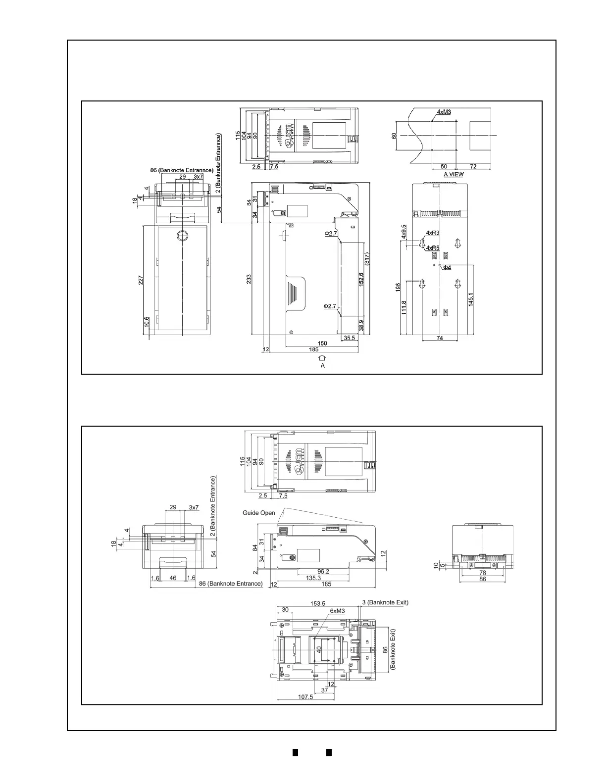
9 UNIT DIMENSIONS
E
NTIRE
U
NIT
O
UTSIDE
D
IMENSIONS
Figure 29 illustrates the EBA-40 Unit’s outside dimensions with the SD3 Stacker.
H
EAD
A
SSEMBLY
O
UTSIDE
D
IMENSIONS
Figure 30 illustrates the EBA-40 Head Assembly’s outside dimensions (without the SD3 Stacker).
NOTE: All dimensions in millimeters
Figure 29 EBA-40 Banknote Acceptors Outside Dimensions
NOTE: All dimensions in millimeters
Figure 30 EBA-40 Banknote Acceptors Outside Dimensions

Table of Contents

Related product manuals