EasyManua.ls Logo

Jensen JMS2012 - Wiring and Connections; Wiring Harness Details; Wiring Diagram

Jensen JMS2012
14 pages
Print Icon
To Next Page IconTo Next Page
To Next Page IconTo Next Page
To Previous Page IconTo Previous Page
To Previous Page IconTo Previous Page
Loading...
JMS2012
3
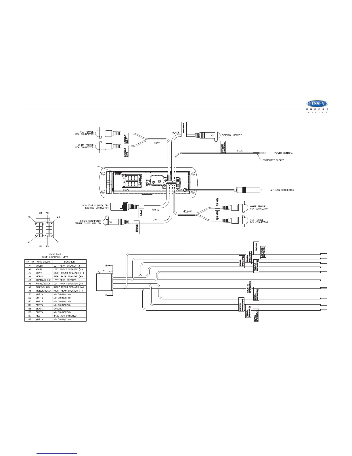
WIRING
WIRING HARNESS A
WIRING HARNESS A

Related product manuals