EasyManua.ls Logo

Johnson Controls Facility Explorer - Page 25

Johnson Controls Facility Explorer
33 pages
Print Icon
To Next Page IconTo Next Page
To Next Page IconTo Next Page
To Previous Page IconTo Previous Page
To Previous Page IconTo Previous Page
Loading...
Network Room Module Technical Bulletin 25
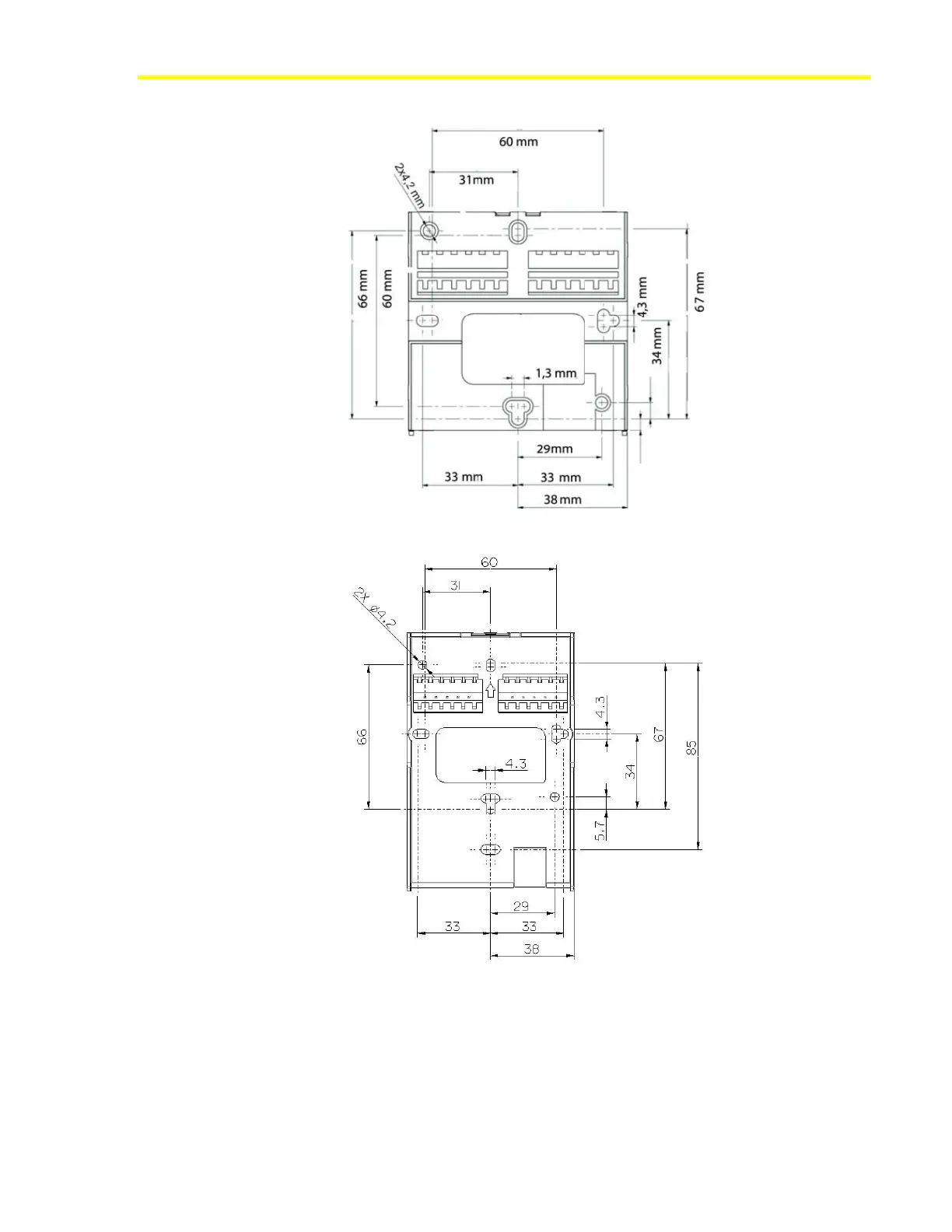
Figure 17: Module Base Dimensions (80 x 80 mm)
Figure 18: Module Base Dimensions (120 x 80 mm)

Related product manuals