EasyManua.ls Logo

JOYTECH SL1000AC - Adjustment; Circuit Board Diagram

JOYTECH SL1000AC
18 pages
Print Icon
To Next Page IconTo Next Page
To Next Page IconTo Next Page
To Previous Page IconTo Previous Page
To Previous Page IconTo Previous Page
Loading...
12
ADJUSTMENT
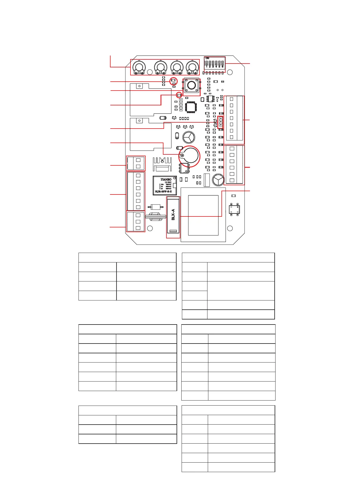
Circuit Board Diagram
Adjustment Knobs
Power Indicator
Pairing Indicator
DIP Switches
J5 Terminal
J2 Terminal
10A Fuse
Pairing Button
Alarm Switch
Alarm
J6 Terminal
J4 Terminal
J3 Terminal
Adjustment Knobs
VR1 Obstruction Sensitivity
VR2 Braking Force
VR3 Slow Stop Distance
VR4 Starting Force
DIP Switches
1 Deactivate Slow Start
2 Reverse Direction
3
Autoclose Time
4
5 Deactivate Collision Close
6 Remote Operation Mode
J4 Terminal
MOT1 Live Motor Pin
MOT2 Neutral Motor Pin
MCOM Common Motor Pin
LAMPL Live Alarm Light Pin
LAMPN Neutral Light Pin
PE Ground Pin
J5 Terminal
13 Open Limit Pin
12 Common Limit Pin
11 Close Limit Pin
10 Sensor Signal Pin
9 IR Ground Pin
8 IR NC Signal Pin
7 IR 15V Supply Pin
J2 Terminal
6 Pedestrian Signal Pin
5 Cyclical Signal Pin
4 Common Signal Pin
3 Stop Signal Pin
2 Open Signal Pin
1 Close Signal Pin
J3 Terminal
PE Mains Ground Pin
L Mains Live Pin
N Mains Neutral Pin

Related product manuals