EasyManua.ls Logo

JUKI M92 - Page 32

JUKI M92
Print Icon
To Next Page IconTo Next Page
To Next Page IconTo Next Page
To Previous Page IconTo Previous Page
To Previous Page IconTo Previous Page
Loading...
– 5 –
󰿿
Fije el cableado del cabezal de la máquina con la
cinta sujetadora
󰿿
del cable montada en el sensor
del pedal.
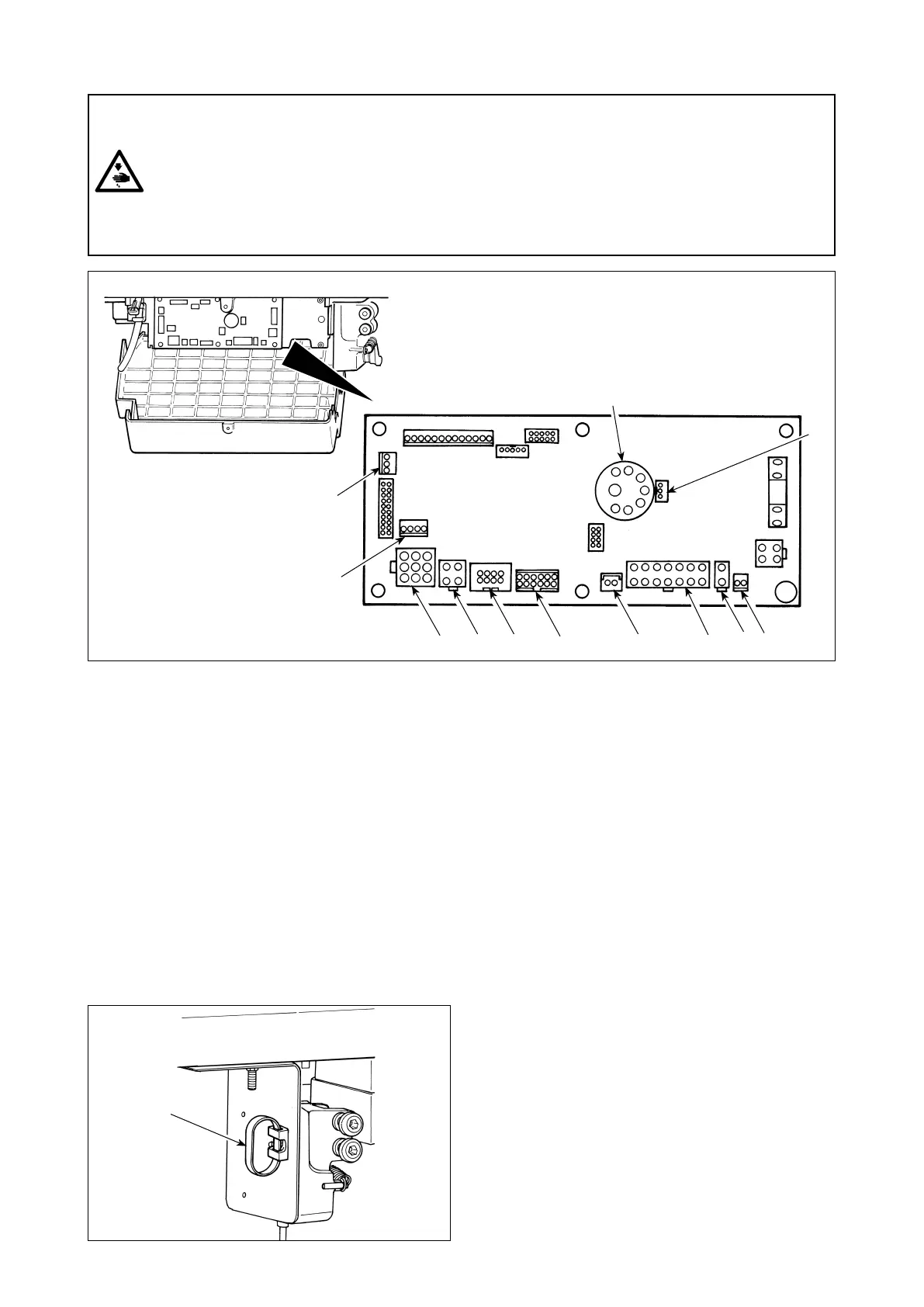
Los siguientes conectores están preparados en SC-920. Co-
necte los conectores que vienen desde el cabezal de la má-
quina a los lugares correspondientes de modo que correspon-
dan a los dispositivos montados en el cabezal de la máquina.
7. Modo de conectar los cables
ADVERTENCIA :
Para evitar lesiones personales causados por un arranque brusco de la máquina de coser, ejecute
el trabajo después de posicionar en OFF y un lapso de tiempo de 5 minutos o más.
Para evitar daños causados por un mal funcionamiento o por usar especicaciones equivocadas,
cerciórese de insertar los cables en los lugares designados.
Para evitar lesiones personales causadas por un mal funcionamiento, cerciórese de bloquear el
conector con el dispositivo de cierre.
Para los detalles del manejo de los dispositivos respectivos, lea con detención los Manuales de
Instrucciones que se suministran con los dispositivos antes de manipular los mismos.
󰿿
CN30 Conector de señales del motor
󱀀
CN38 Panel de operación : Pueden programarse di-
versos tipos de costura.
(Consulte el Manual de
instrucciones para los detalles.)
󱀁
CN33 Sincronizador: Detecta la posición de la barra
de agujas.
󱀂
CN37 Solenoide de elevación del pie prensatelas
(sólo para el tipo de elevador automático del
pie prensatelas)
󱀃
CN48 Interruptor de seguridad (estándar): Cuando
se inclina la máquina de coser sin haber des-
conectado la corriente eléctrica, se inhabilita la
operación de la máquina de coser para prote-
gerla contra daños.
Interruptor de opción (OPTION): Se puede
cambiar la función introducida cambiando al-
ternativamente la función interna con este inte-
rruptor.
󱀄
CN42 Interruptor de seguridad de corte de hilo
󱀅
CN39 Pedal de máquina para trabajar de pie: JUKI
PK70 estándar, etc. La máquina de coser pue-
decontrolarsemedianteseñalesexternas.
󱀆
CN55 Fuentedealimentaciónexternade+24V
󱀇
CN57 Entrada del contador de control de producción
simplicado
󱢳
CN36 Solenoide de cabezal de máquina: Provisto
de solenoides para corte de hilo, pespunte de
transporte inverso, interruptor de transporte
inverso de un toque.
󱢴
CN54 Sensor de detección de nde material ED-5,
etc.
󱢵
CN34 Entrada de sensor del pedal
󱀆
󱢳
󱀂
󱀇
󱀅
󱀀󱀃
󰿿
󱀁
󱀄
󱢴
󱢵

Related product manuals