EasyManua.ls Logo

JUKI M92 - Page 56

JUKI M92
Print Icon
To Next Page IconTo Next Page
To Next Page IconTo Next Page
To Previous Page IconTo Previous Page
To Previous Page IconTo Previous Page
Loading...
– 5 –
󰿿
Обеспечьте безопасное расположение проводов относи-
тельно головки машины с помощью кабельного зажима
󰿿
,
который устанавливается на датчик педали.
Предупреждение :
Чтобы предотвратить травмы, вызванные резким запуском швейной машины, выполняйте работы по
обслуживанию после того, как отключите выключатель питания и подождете 5 минут или больше.
Чтобы предотвратить повреждение устройства, из-за неправильного обращения и неправильных технических
условий, убедитесь, что подсоединили все соответствующие разъемы к указанным местам.
Чтобы предотвратить травмы, вызванные неправильным обращением, убедитесь, что заблокировали
разъемы замками.
Что касается деталей работы на соответствующих устройствах, внимательно прочитайте руководства по
эксплуатации, прилагаемые к устройствам перед работой на этих устройствах.
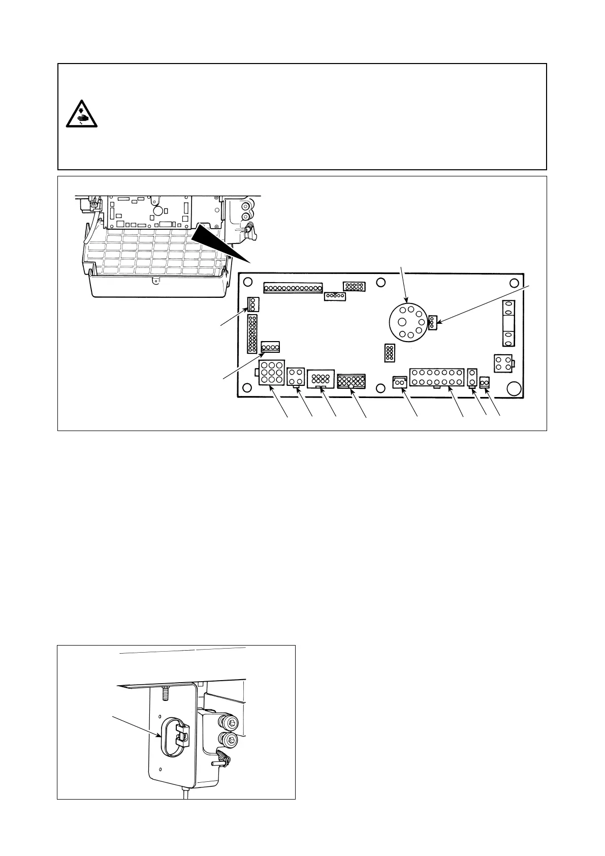
7. Подсоединение шнуров
󰿿
CN30 Сигнальный разъем мотора
󱀀
CN38 Пульт управления: позволяет запрограммиро-
вать различные виды шитья. (Подробности в
инструкции по эксплуатации.)
󱀁
CN33
Синхронизатор : Он определяет положение игольницы.
󱀂
CN37 Соленоид для подъема прижимной лапки (Под-
робности в инструкции по эксплуатации. )
󱀃
CN48
Аварийный выключатель (стандартный): используется
при наклоне швейной машины без выключения элек-
тропитания, работа швейной машины блокируется,
чтобы защитить от опасности.
Переключатель режимов : Входная функция может
быть изменена, переключением внутренней функции с
помощью этого переключателя.
󱀄
CN42 Аварийный выключатель обрезки нити
󱀅
CN39 Постоянная педаль машины: стандарт JUKI
PK70, и т.д. Швейной машиной можно управлять
с помощью внешних сигналов.
󱀆
CN55 Внешний источник питания +24 В
󱀇
CN57 Упрощенный ввод данных счетчика управления
производством
󱢳
CN36 Соленоид головки машины: снабжен соленоида-
ми для обрезки нити и шитья с обратной подачей
ткани, а также выключателем обратной подачи
ткани с включением одним нажатием.
󱢴
CN54 Датчик обнаружения конца материала ED-5, и
т.д.
󱢵
CN34 Ввод датчика педали
Следующие разъемы подготовлены в SC-920. Подсоедините разъ-
емы, идущие от шпиндельной головки, к соответствующим местам,
чтобы соответствовать устройствам, установленным на шпиндель-
ной головке.
󱀆
󱢳
󱀂
󱀇
󱀅
󱀀󱀃
󰿿
󱀁
󱀄
󱢴
󱢵

Related product manuals