EasyManua.ls Logo

JUKI MO-6804D - Page 77

JUKI MO-6804D
Print Icon
To Next Page IconTo Next Page
To Next Page IconTo Next Page
To Previous Page IconTo Previous Page
To Previous Page IconTo Previous Page
Loading...
– 27 –
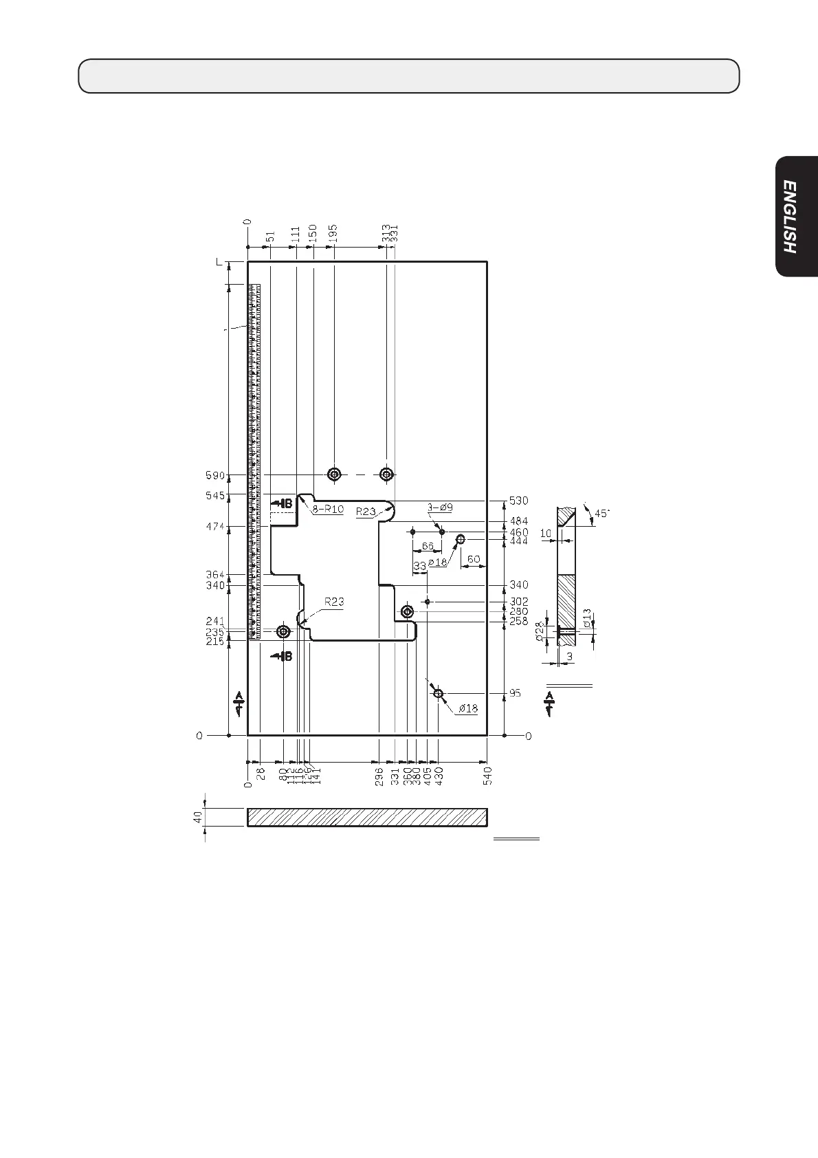
1200
Unitmm
Difference±2
Black scale marker line
断面
断面
20. TABLE DRAWING
B-B
A-A

Table of Contents

Related product manuals