EasyManua.ls Logo

K2 Pumps UTS03301K - Page 25

K2 Pumps UTS03301K
32 pages
Print Icon
To Next Page IconTo Next Page
To Next Page IconTo Next Page
To Previous Page IconTo Previous Page
To Previous Page IconTo Previous Page
Loading...
Para comunicarse a Soporte cnico profesional llame al 1-844-242-2475 25
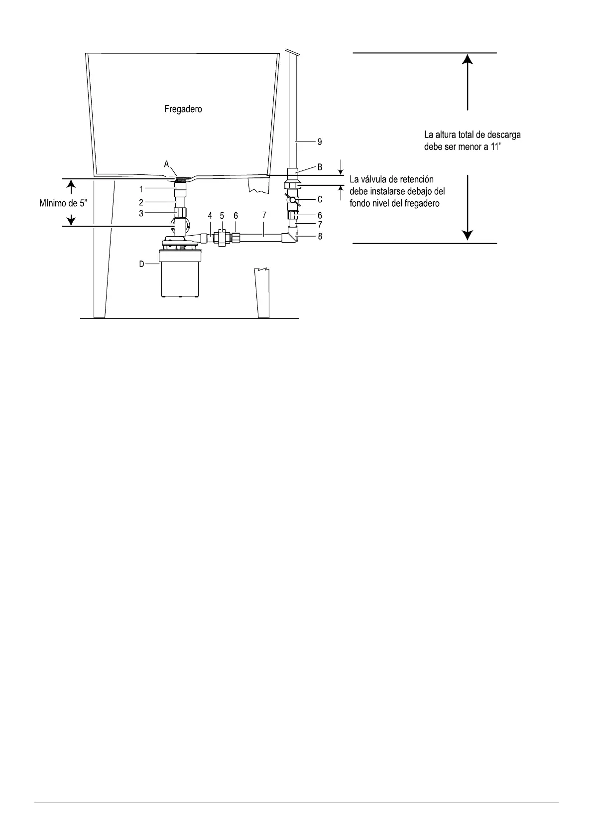
AVISO: La altura vertical de la válvula de retención a la salida del tubo debe ser de al menos 6.5 pies de anular la fuga
lvula de retención.
5. Envuelva las roscas del adaptador macho de 1-1/2” (Parte No.3) con 1 a 1-1/2 vuelta de cinta de teflón y colóquelo
en la admission de la bomba. Apriételo a mano 1/2 vuelta más con una llave de tubería o con pinzas ajustables. ¡NO
apriete demasiado!
6. Mida la tubería de PVC de 1-1/2” (Parte No.2) PVC contra el desagüe y la bomba y recorte la tubería para adaptarla
al tamaño correcto.
7. Haga una prueba para armar la bomba (en seco - sin pegamento)en la tubería de desagüe. Haga balancear la
bomba hasta que quede precisamente orientada hacia la tubería de desagüe, y luego marque tanto la bomba como
la unidad dela tubería de admisión/adaptador, para poder instalar la bomba correctamente en el Paso 8. Coloque
un soporte provisional de bajo de la bomba para aliviar la tensión sobre la tubería de descarga del fregadero/de la
pileta, hasta que el pegamento se haya endurecido. jelo en esa posición mientras mide y corta la tubería de
descarga (Paso 12).
8. Deslice la bomba hacia arriba en la posición correcta y adhiera la tubería (Parte No.2) al adaptador macho (Parte
No.3 en la bomba).
No coloque pegamento en la bomba ni en el motor;
Verifique que la bomba esté colocada en la direccióncorrecta (haga corresponder las marcas hechas en el Paso
7);
Coloque el soporte en posición debajo del motor.
9. Envuelva la entrerrosca galvanizada de 1-1/4” (Parte No.4) con 1-1/2 a 2 vueltas de cinta de teflón en cada extremo
y enrósque lo en la toma de descarga de la bomba.
AVISO: Apriete esto solamente lo suficiente como para evitarfugas. El plástico se puede rajar si se aprieta demasiado.
10. Sostenga la entrerrosca (Parte No.4) con una llave para tuberías y enrosque una mitad de la unión de 1-1/4” (Parte
No.5) en ella, apriete amano 1-1/2 vuelta más con una llave para tuberías o pinzas ajustables.
11. Ahora, envuelva las roscas en ambos adaptadores macho de1-1/4” (Parte No.6) con 1-1/2 a 2 vueltas de cinta de
teflón. Enrosque uno de los adaptadores en la otra mitad de la unión de1-1/4” (Parte No.5), apriete a mano 1/2
vuelta más, con una llave de tuercas o un par de pinzas ajustables. ¡NO apriete demasiado!
Para facilitar la remoción de la bomba durante
algún servicio o limpieza, instale una unión de
solvente de 1-1/2" en la tubería. descendente.
Figura 2: Bomba instalada

Related product manuals