EasyManua.ls Logo

Kampmann Katherm HK - Page 29

Kampmann Katherm HK
84 pages
Print Icon
To Next Page IconTo Next Page
To Next Page IconTo Next Page
To Previous Page IconTo Previous Page
To Previous Page IconTo Previous Page
Loading...
Katherm HK
Assembly, installation and operating instructions
29
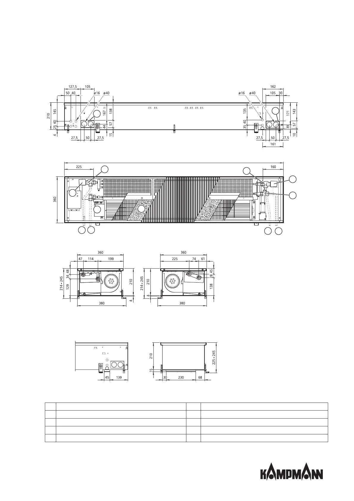
Katherm HK 360, 4-pipe, trench height 210 mm
1
2
5
6
7
9
Front view, connection openings
Trench length
Top view, water connection on room side
Window side
Window side Room side
Window side Room side
Cross-section (cooling or
heating)
Example: Roll-up grille
Front view with built-in
condensate pump
Side view with built-in
condensate pump
9
Room side Window side
10
5
6
8
3
4
1
Cooling supply
2
Cooling return
3
Heating supply
4
Heating return
5
½” valve body, axial, for higher flow, type 346914
6
Thermoelectric actuator, type 146906
7
½” return shut-off valve, angled, type 145955
8
½” return shut-off valve, straight, type 145954
9
Pipe openings, punched
10
Filter (optional)

Table of Contents

Other manuals for Kampmann Katherm HK

Related product manuals