EasyManua.ls Logo

Key Automation CT202 24 - Page 102

Key Automation CT202 24
116 pages
Go to English
To Next Page IconTo Next Page
To Next Page IconTo Next Page
To Previous Page IconTo Previous Page
To Previous Page IconTo Previous Page
Loading...
102
PL
4 - MONTAŻ PRODUKTU
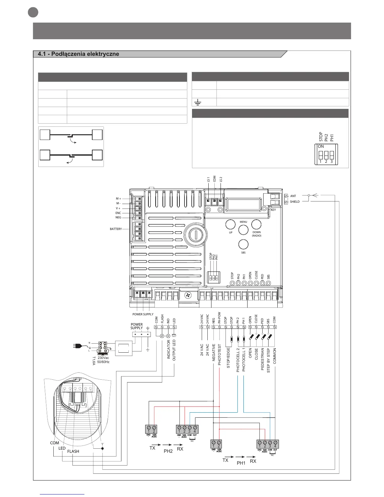
4.1 - Podłączenia elektryczne
UWAGA – przed przystąpieniem do wykonywania podłączeń sprawdzić, czy do centrali nie jest doprowadzone zasilanie.
ON
1 2 3
STOP
PH2
PH1
PODŁĄCZENIE SILNIKÓW
Listwa zaciskowa do podłączenia zasilania
M1 + Zasilanie silnika M1 +
M1 - Zasilanie silnika M1 -
M2 + Zasilanie silnika M2 +
M2 - Zasilanie silnika M2 -
GNIAZDA ZASILANIA
L Faza zasilania 230 Vac (120 Vac) 50-60 Hz
N Zero zasilania 230 Vac (120 Vac) 50-60 Hz
Uziemienie
PRZEŁĄCZNIK
Ustawienie przełącznika w położeniu ON powoduje dezaktywację
wejść STOP, PH1, PH2. Eliminuje to konieczność mocowania zworek
na wejściach listwy zaciskowej.
UWAGA – po ustawieniu przełącznika w
położeniu ON następuje wyłączenie
podłączonych zabezpieczeń
M1M2
M2M1
NEG
PH-POW
STOP
STOP
PH 2
COM
FLASH
IND
LED
24 VAC
24 VAC
PH 1
OPEN
CLOSE
SBS
PED
COM
PHOTOTEST
OUTPUT LED
OPEN
PHOTOCELL 1
PHOTOCELL 2
CLOSE
PEDESTRIAN
STEP BY STEP
COMMON
STOP/EDGE
INDICATOR
NEGATIVE
24 VAC
24 VAC
2
3
4
1
1
2
TX
RX
NC
PH2
2
3
4
1
1
2
TX
RX
PH1
GND
_
12/24
AC/DC
GND
_
12/24
AC/DC
COM
OUT
GND
_
12/24
AC/DC
GND
_
12/24
AC/DC
COM
OUT
NC
POWER
POWER SUPPLY
SUPPLY
N
T1,6A
L
230Vac
50/60Hz
COM
LED
FLASH
STOP
STOP
PH2
PH1
OPEN
CLOSE
PED
SBS
PH2
PH1
SHIELD
UP
MENU
SBS
DOWN
(RADIO)
ANT
NEG
ENC
V +
M -
M +
BATTERY
LS 1
LS 2
KEY
COM

Table of Contents

Related product manuals