EasyManua.ls Logo

KitchenAid KEBK171SSS - Page 64

KitchenAid KEBK171SSS
66 pages
Print Icon
To Next Page IconTo Next Page
To Next Page IconTo Next Page
To Previous Page IconTo Previous Page
To Previous Page IconTo Previous Page
Loading...
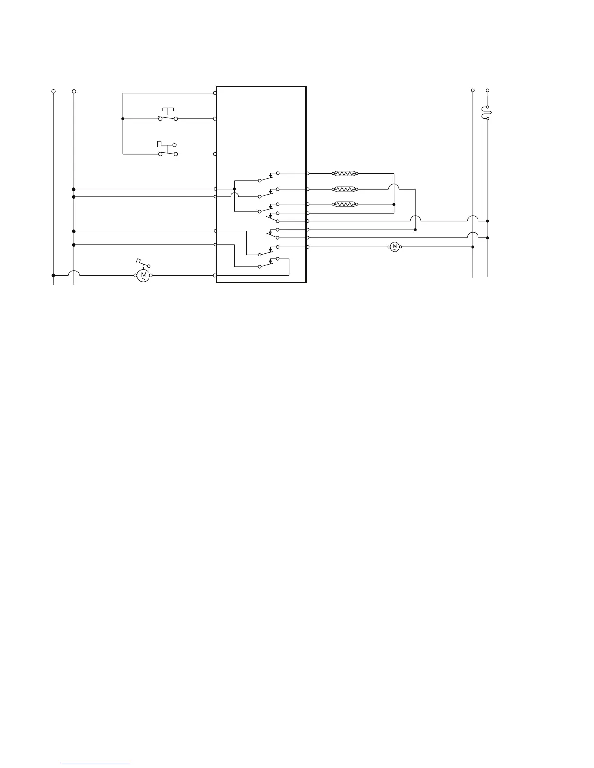
7-4
CLEAN
BAKE2000W
IN BROIL 1800W
BLOWER
L1
BK
N L2
N
W
BK
BK
W
BK
BK
W
MOTORLATCH
BR
BU
OR
T
P1-5
P1-7
P1-4
DOOR SWITCH
(ON LATCHASSY)
LATCHSWITCH
(OPERATEDBYMOTOR)
BR
T4-3
T4-4
P9-5
P8-1
P8-5
T3-3
T3-1
T3-4
T1-1
T1-2
T2-1
T2-2
P9-2
BU
R
OR
R
GY
W R
W
R
BU
OUTBROIL 1450W
OR
R/W
R
R/W
OVEN SHUTDOWN
THERMAL CUTOFF
(NON-RESETTABLE)
105°C(221°F)

Table of Contents

Related product manuals