EasyManua.ls Logo

Klarstein Barett - Page 27

Klarstein Barett
Print Icon
To Next Page IconTo Next Page
To Next Page IconTo Next Page
To Previous Page IconTo Previous Page
To Previous Page IconTo Previous Page
Loading...
27
EN
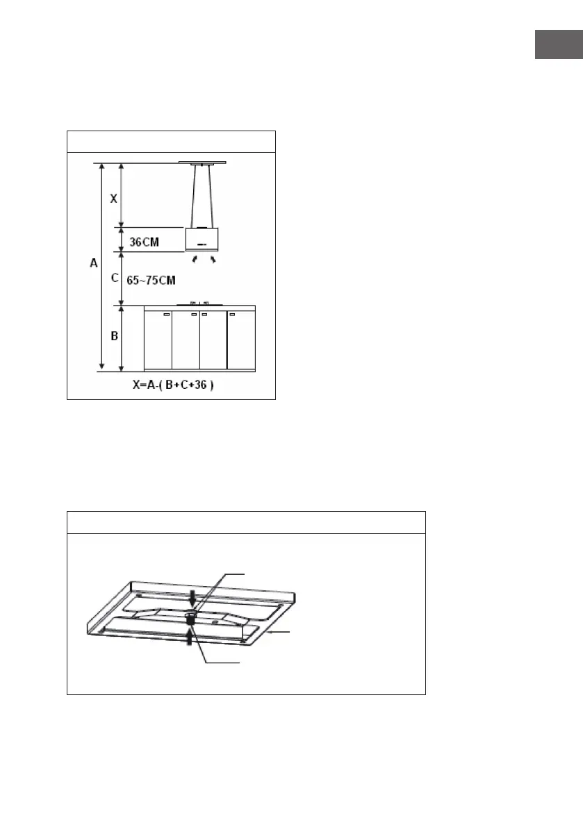
1. Before xing the appliance, switch it off.
2. The cooker bonnet should be positioned at a distance of 65-75 cm to the cooking
surface in order to ensure its optimal efciency. See image 1.
Image 1
3. The ceiling must be able to support a weight of at least 120 kg and the thickness of
the ceiling must be ≥ 30 mm.
4. Attach the screw cylinder to the hanging board and use two M10 screw nuts to
secure the screw cylinder to the hanging board from above and below. The upper
end of the screw cylinder overlaps the nut by 1 mm (see image 2).
Image 2
Wire rope
length
M10 screw nuts
Hanging board
Screw cylinder

Table of Contents

Related product manuals