EasyManua.ls Logo

KOBE IS2336SQ - Page 8

KOBE IS2336SQ
72 pages
Print Icon
To Next Page IconTo Next Page
To Next Page IconTo Next Page
To Previous Page IconTo Previous Page
To Previous Page IconTo Previous Page
Loading...
6
Telescopic Stack Installation
Note: Duct cover with telescopic stack sold separately.
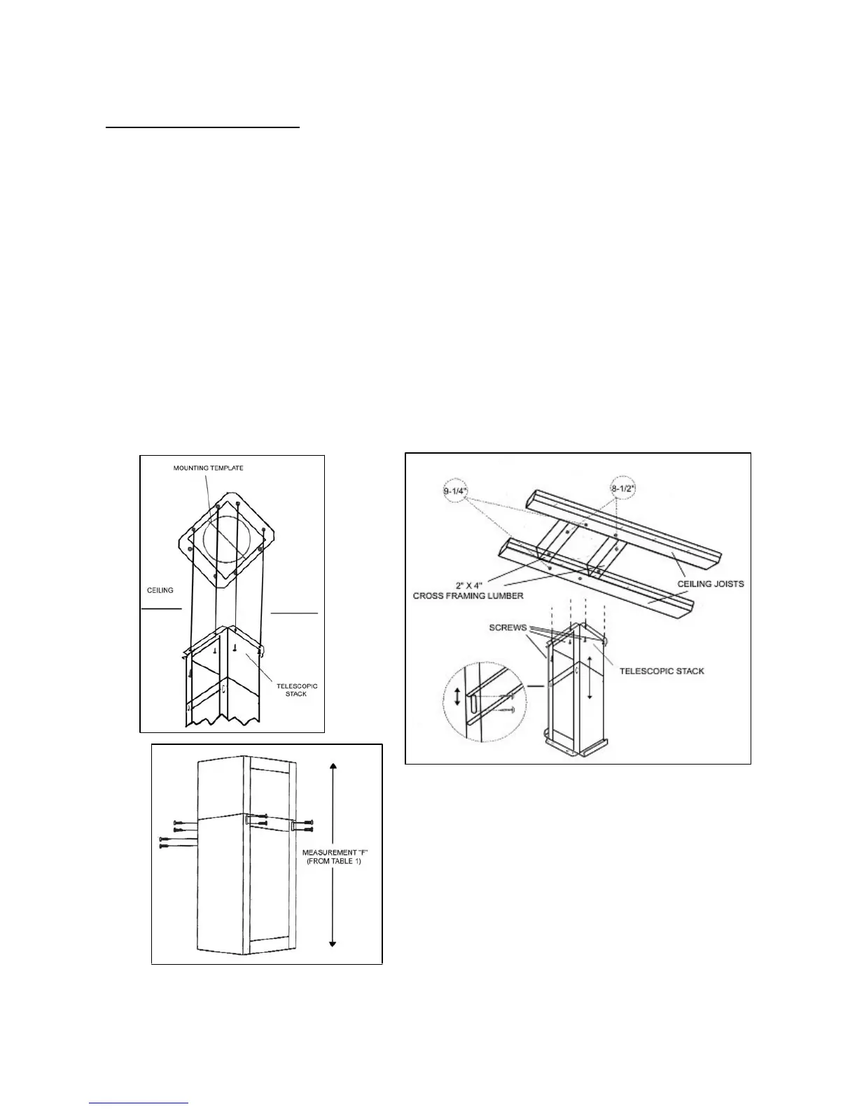
1. Mark centerlines of cook top or range on ceiling above. Use centerlines marked on ceiling
to position the mounting template as shown in Figure 2.
2. Remove and save template. Cut and remove ceiling drywall. Install 2” x 4” cross framing
lumber (not provided) between ceiling joists. Refer to Figure 3. Consult a professional if
you have difficulty or your installation is unique.
3. Finish the ceiling surface. Be sure to mark the location of the ceiling joists and cross
framing, or replace the mounting template in the position of the ceiling joists & cross
framing.
4. Attach the telescopic stack to the ceiling and securely fasten to the joists and cross framing
with eight screws (not provided) as shown in Figure 3. Make sure screws are driven into
center of joists and cross framing for maximum support.
5. Adjust the telescopic stack using reference F calculated in Table 1 and measurements on
page 12. Tighten from the side with eight (4x8 mm) screws (provided) as shown in Figure
4.
Figure 2
Figure 3
Figure 4

Related product manuals