EasyManua.ls Logo

Kone V3F18 - Panels in the Machine Room

Kone V3F18
42 pages
Print Icon
To Next Page IconTo Next Page
To Next Page IconTo Next Page
To Previous Page IconTo Previous Page
To Previous Page IconTo Previous Page
Loading...
V3F25/18 drive
Installation Instruction
© 2004 KONE Corporation AM-11.65.020
All rights reserved. 9 (42) (E) 2004-01-08
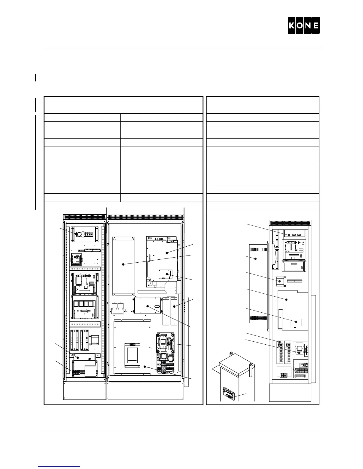
3.3 Panels in the machine room
MLB control panel and MLB drive panel in the
MiniSpace™ elevators with V
3
F25 drive
Control/drive panel in MiniSpace™
elevators
1. MLB control panel 6. MLB drive panel 1. Control panel and drive panel
2. Switch unit 7. V
3
F25 (385) 2. Power module
3. RDF buttons (270) 8. MLB line bridge (386) 3. Brake resistor (306)
4. Power module 9. Brake control unit (388) 4. RDF buttons (270)
5. Drive panel interface
module
10. Main contactor module
(201:1)
5. Optional devices
11. Resistor module:
charging resistor and fuse
(390)
6. V
3
F25 (385)
12. Line filter unit (389) 7. NTS module
13. NTS module 8. Brake control unit (388)
9. Main contactor module (201:1)
9
5
11
8
10
4
2,3
13
12
6
1021344.wmf
7
1
3
1
4
2
5
6
7
8
9
1021345.wmf

Other manuals for Kone V3F18

Related product manuals