EasyManua.ls Logo

Kyocera TASKalfa 221 - Automatic Adjustment Using the Original for Adjustment

Kyocera TASKalfa 221
355 pages
To Next Page IconTo Next Page
To Next Page IconTo Next Page
To Previous Page IconTo Previous Page
To Previous Page IconTo Previous Page
Loading...
21
F
R
5mm
(149
5mm)
74
1mm
149
1mm
Automatische Einstellung mithilfe des Originals
Bevor diese Einstellung durchgeführt wird, muss der Winkel der Vorder- und Hinterkante eingestellt werden (siehe die Seiten 8 und 11).
1. Den Modus auf Wartungsmodus U076 setzen und die Endkante des Originals für die Einstellung abschneiden. Dann dieses auf das Originalbedienfeld der DP-
Haupteinheit legen, wobei die mit F und R bedruckte Seite nach oben weisen soll..
2. Die Starttaste drücken, um das eingelegte Original einzuziehen. Vergrößerung, Vorderkanten-Timing und Mittellinie werden dann automatisch eingestellt
3. .Falls die Ergebnisse in Ordnung sind und es sich um eine 7-Segment-Bedienungstafel handelt: Folgendes wird angezeigt. (Punkt1: Gd, Punkt2: 0, Punkt3: 0, Punkt4: 0)
Wenn es sich um eine LCD-Bedienungstafel handelt: (Zahlenwerte für CONVEY SPEED, LEAD EDGE ADJ und DP CENTER werden angezeigt.).
4. Falls die Ergebnisse nicht in Ordnung sind und es sich um eine 7-Segment-Bedienungstafel handelt: (nG1, nG2, nG3) und Punkt 1 werden angezeigt. Wenn es sich um
eine LCD-Bedienungstafel handelt: (DATA, NG1, NG2) wird angezeigt.(
Einzelheiten sind der Wartungsanleitung zu entnehmen).
Ajuste automático utilizando el original para el ajuste
Antes de hacer el ajuste, asegúrese de ajustar el ángulo del borde superior y el ángulo del borde inferior (vea las páginas 8 y 11).
1. Entre en el modo de mantenimiento e ingrese en el ítem de mantenimiento U076 y corte el borde inferior del original para el ajuste. Después, colóquelo en la cubierta de
originales de la unidad principal DP, con el lado donde F y R están impresos hacia arriba.
2. Presione la tecla de inicio para alimentar el original cargado. Entonces, el cambio de tamaño, sincronización del borde superior y la línea central se ajustan
automáticamente..
3. Si el resultado es correcto y el tablero de controles es del tipo de 7 segmentos: Aparecerá lo siguiente: (Ítem 1: Gd, Ítem 2: 0, Item 3: 0, Item 4: 0).
Si el tablero de controles es del tipo LCD: (Se muestran los valores numéricos para CONVEY SPEED, LEAD EDGE ADJ y DP CENTER).
4. .Si el resultado no es correcto y el tablero de controles es del tipo de 7 segmentos: se muestra (nG1, nG2, nG3) e Ítem 1. Si el tablero de controles es del tipo LCD: se
muestra (DATA, NG1, NG2).
(Para más detalles, vea el manual de servicio).
Réglage automatique en utilisant l’original pour effectuer le réglage
Avant d’effectuer ce réglage, veiller à régler l’angle du bord avant et l’angle du bord arrière (se reporter aux pages 8 et 11).
1. Passez en mode de maintenance U076 et coupez le bord queue de l'original de réglage. Placez-le ensuite sur le plateau de l'original de l'unité principal DP, le côté
avec les lettres F et R imprimées regardant vers le haut.
2. Appuyez sur la touche de démarrage pour charger l'original. Le réglage de l'agrandissement, de la synchronisation du bord tête et de l'axe, s'effectue
automatiquement.
3. Si les résultats obtenus sont satisfaisants et si le panneau de commande est du type à 7 segments : l'affichage doit être le suivant. (Point 1 : Gd, Point 2 : 0. Point 3
: 0, Point 4 : 0).Si le panneau de commande est du type LCD : (l'affichage est celui des valeurs numériques de CONVEY SPEED, LEAD EDGE ADJ et DP CENTER.)
4. Si les résultats obtenus sont défectueux et si le panneau de commande est du type à 7 segments : l'affichage doit être le suivant (nG1, nG2, nG3) et Point 1. Si le
panneau de commande est du type LCD : l'affichage est (DATA, NG12, NG2).(Pour plus de détails, reportez-vous au manuel de service).
Regolazione automatica eseguita con l’originale
Prima di eseguire questa regolazione, verificare che l’angolo del bordo principale e l’angolo del bordo di uscita siano regolati (vedere le pagine 8 e 11).
1. Entrare in modalità manutenzione U076 e tagliare il bordo di uscita dell'originale per la regolazione. Quindi posizionarlo sul piano originale dell'unità principale del DP con il
lato su cui sono stampati F e R rivolto verso l'alto.
2. Premere il tasto di avvio per alimentare l'originale caricato. L'ingrandimento, la sincronizzazione del bordo principale e la linea centrale, vengono quindi automaticamente
regolati..
3. Se i risultati sono OK e il tipo di pannello operativo è quello a 7 segmenti: viene visualizzato quanto segue. (Voce 1: Gd, Voce 2: 0, Voce 3: 0, Voce 4: 0).Se il tipo di pannello
operativo è quello LCD: (Vengono visualizzati i valori numerici per CONVEY SPEED, LEAD EDGE ADJ e DP CENTER.)
Se i risultati sono NG e il tipo di pannello operativo è quello a 7 segmenti: vengono visualizzati (nG1, nG2, nG3) e Voce 1. Se il tipo di pannello operativo è quello LCD:
viene visualizzato (DATA, NG1, NG2).(
Per ulteriori dettagli, vedere il manuale d’istruzioni).
通过调整用原稿进行自动调整
通过调整用原稿进行自动调整通过调整用原稿进行自动调整
通过调整用原稿进行自动调整
先完成前端倾斜和后端倾斜的调整后
先完成前端倾斜和后端倾斜的调整后先完成前端倾斜和后端倾斜的调整后
先完成前端倾斜和后端倾斜的调整后
再进行以下操作
再进行以下操作再进行以下操作
再进行以下操作
(
((
( 参照第
参照第参照第
参照第 8
88
8 页和第
页和第页和第
页和第 11
1111
11
)
))
)
1. 定为 U076 维护模式并切断调整用原稿的后端有 F 和 R 的面朝上,将调整用原稿放在 DP 主机原稿台上。
2. 起动键供入已装入的原稿。后自动进行等倍值、端定时和中心线的调整。
3. 果调整结果正常,且操作面板采用七段显示示以下信息。(项目 1Gd, 20,项目 30, 40)
如果操作面板采用 LCD 屏(显示 CONVEY SPEEDLEAD EDGE ADJ 和 DP CENTER 的数值。
4. 果调整结果不正常,且操作面板采用七段显示屏显示nG1、nG2、nG3和项目 1。如果操作面板采用 LCD 屏显示DATA、NG1、NG2)
确认原稿设定位置后,再次进行调整 ( 情请参照维修手册 )。
調整用原稿
調整用原稿調整用原稿
調整用原稿によ
によるによる
による自動調整
自動調整自動調整
自動調整
先端斜
先端斜先端斜
先端斜め
め調整
調整調整
調整および
およびおよび
および後端斜
後端斜後端斜
後端斜め
め調整
調整調整
調整をおこなってから
をおこなってからをおこなってから
をおこなってから実施
実施実施
実施する
するする
する。
8
88
8 ページ
ページページ
ページ、
11
1111
11 ページ
ページページ
ページ参照
参照参照
参照)
1. ンテナンスモード U076 をセットし、調整用原稿の後端をカットし FR 記載されている面を上 DP 体の原稿テーブルにセットする。
2. タートボタンでセットした原稿を搬送させ、等倍先端タイミングンターライン調整が自動的におこなわれる。
3. 行結果 OK 場合、操作部が7 seg タイプの場次のように表示される。(項目 1Gd,項目 20項目 30,項目 4:0)
操作部が LCD タイプの場合(CONVEY SPEED,LEAD EDGE ADJ,DP CENTER と各数値が表示されます)
4. 行結果 NG 場合、操作部が7 seg タイプの場 (nG1,nG2,nG3)項目 1 に表示され操作部が LCD タイプの場(DATA,NG1,NG2と表示されます
原稿のセット位置を確認し、自動調整をおこなう(詳細はサービスマニュアル参照
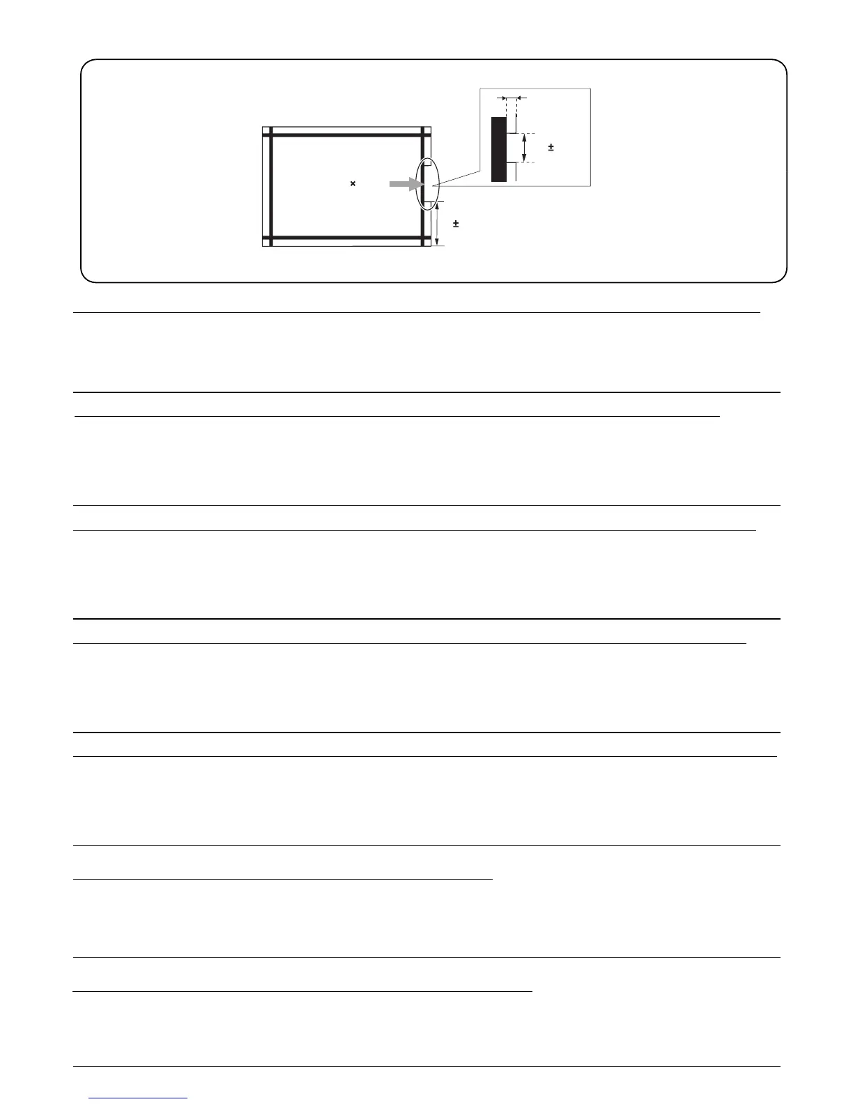
Automatic adjustment using the original for adjustment
Before performing this adjustment, be sure to adjust the angle of leading edge and the angle of trailing edge (see pages 8 and 11).
1. Set the mode to Maintenance Mode U076 and cut off the trailing edge of the adjustment original. Then place it on the DP main unit original table with the side on which F
and R are printed facing upwards
2. Press the Start button to feed in the loaded original. The magnification, leading edge timing and center line are then automatically adjusted.
3. If the results are OK and the operation panel is a 7-segment type: The following is displayed. (Item 1: Gd, Item 2: 0, Item 3: 0, Item 4: 0)
Adjustments of the DP magnification, DP leading edge timing and DP center line are performed automatically.If the operation panel is an LCD type: (Numerical values for
CONVEY SPEED, LEAD EDGE ADJ and DP CENTER are displayed.)
4. If the results are NG and the operation panel is a 7-segment type: (nG1, nG2, nG3) and Item 1 are displayed. If the operation panel is an LCD type: (DATA, NG1, NG2) is
displayed.(For details, see the service manual).

Table of Contents

Other manuals for Kyocera TASKalfa 221

Related product manuals