EasyManua.ls Logo

Kyocera TASKalfa 520i - Setting the Exposure Density Gradient

Kyocera TASKalfa 520i
508 pages
Print Icon
To Next Page IconTo Next Page
To Next Page IconTo Next Page
To Previous Page IconTo Previous Page
To Previous Page IconTo Previous Page
Loading...
2KR/2KS-1
1-3-42
U091 3. Press the start key. The value is set.
4. After changing the Threshold(Com) value, turn the main power switch off and on.
Completion
Press the stop key. The screen for selecting a maintenance item No. is displayed.
U093
Setting the exposure density gradient
Description
Changes the exposure density gradient in the manual density mode, depending on respective image quality
modes.
Purpose
To set how the image density is altered by a change of one step in the manual density adjustment for respec-
tive image quality modes. Also used to make copy images darker or lighter.
Method
1. Press the start key.
2. Select the image quality mode. The setting screen for the selected item is displayed.
Setting: [TEXT]
1. Select the item to be set.
2. Adjust the setting using the +/- or numeric keys.
Increasing the setting makes the change in density larger, and decreasing it makes the change smaller.
Figure 1-3-17
3. Press the start key. The value is set.
Maintenance
item No.
Description
Display Description
TEXT Density in the text mode
MIXED Density in the text and photo mode
OTHER Density in modes other than the text mode or the text and photo mode
FAX TEXT Density in the text in fax mode
FAX PHOTO Density in the photo in fax mode
Display Description Setting
range
Initial
setting
TEXT DARKER Change in density when manual density is set dark 0 to 3 0
TEXT LIGHTER Change in density when manual density is set light 0 to 3 0
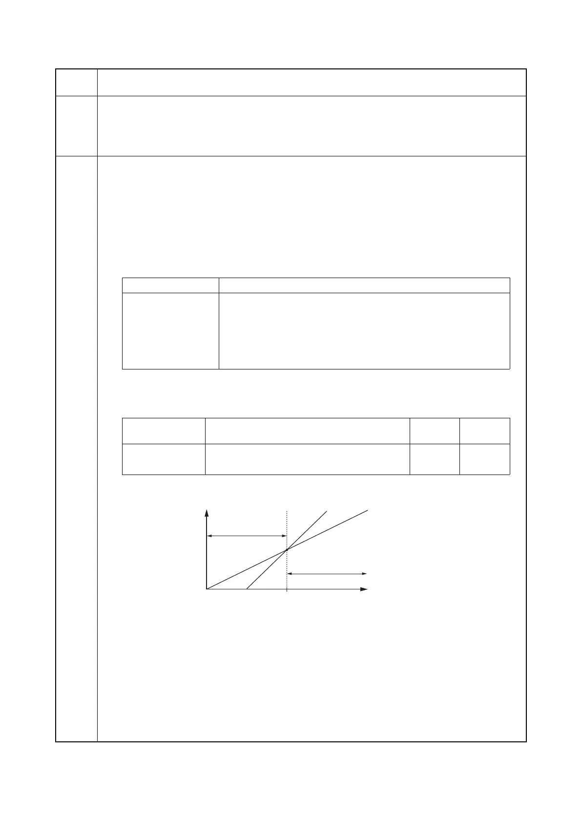
Image density
Density adjustment
Dark
Light
Light
Center
Dark
Setting: 0
Setting: 3
Set to DARKER
Set to LIGHTER

Table of Contents

Related product manuals