EasyManua.ls Logo

Laars EBP0110 - Page 16

Laars EBP0110
40 pages
Print Icon
To Next Page IconTo Next Page
To Next Page IconTo Next Page
To Previous Page IconTo Previous Page
To Previous Page IconTo Previous Page
Loading...
Page 16
LAARS Heating Systems
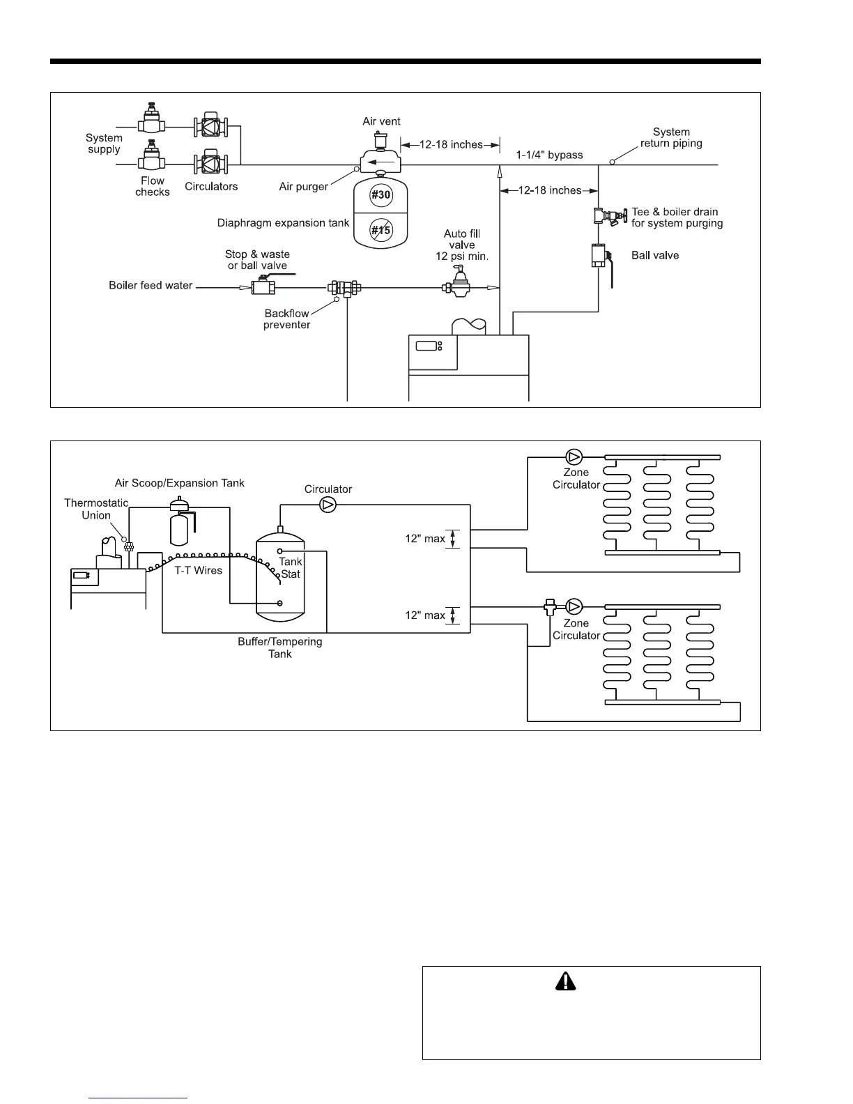
EDP/EDN boilers installed in radiant (in floor)
systems and other low mass boilers should be provided
with a buffer/blender tank to assure a controlled supply
temperature, and to prevent short cycling. In radiant
systems utilizing 3-way tempering valves, a bypass
pipe must be installed between supply and return piping.
1. EBP ONLY: Connect system supply to 1¼"
supply connection marked “SUPPLY”.
2. EDP/EDN ONLY: Connect 1¼" thermostatic
union to system supply connection in direction
designated with union.
3. Pipe the discharge of the relief valve, full size, to
a drain or in a manner to prevent injury in the
event of pressure relief.
4. Install an air purger in flow supply line as shown
in piping diagrams.
5. Install automatic float type air vent on air scoops.
Figure 22. Hydronic Piping EBP/EDP for Systems Zoned with Circulators.
Figure 23. Hydronic Piping EDP for Low-Temp and/or Multi-Temp Systems.
6. Install a diaphragm expansion tank in boiler
outlet piping. To ensure sufficient expansion
volume for the hydronic system water, due to
heat-up and cool-down during normal operation,
a #30 or larger expansion tank must be used on
EBP combo units.
NOTE: Never install expansion tank and auto fill
valve on return.
7. If necessary, install a properly sized circulator
with optional isolation valves in supply beyond
expansion tank.
Caution
To avoid the risk of fire which can result in property
damage, all hot water pipes must be installed with a
minimum 1" (25mm) clearance from combustible
materials.

Table of Contents

Related product manuals