EasyManua.ls Logo

Lastec D2573 - Electrical Information

Lastec D2573
53 pages
Print Icon
To Previous Page IconTo Previous Page
To Previous Page IconTo Previous Page
Loading...
Electrical Information
9/27/19 5-4
5
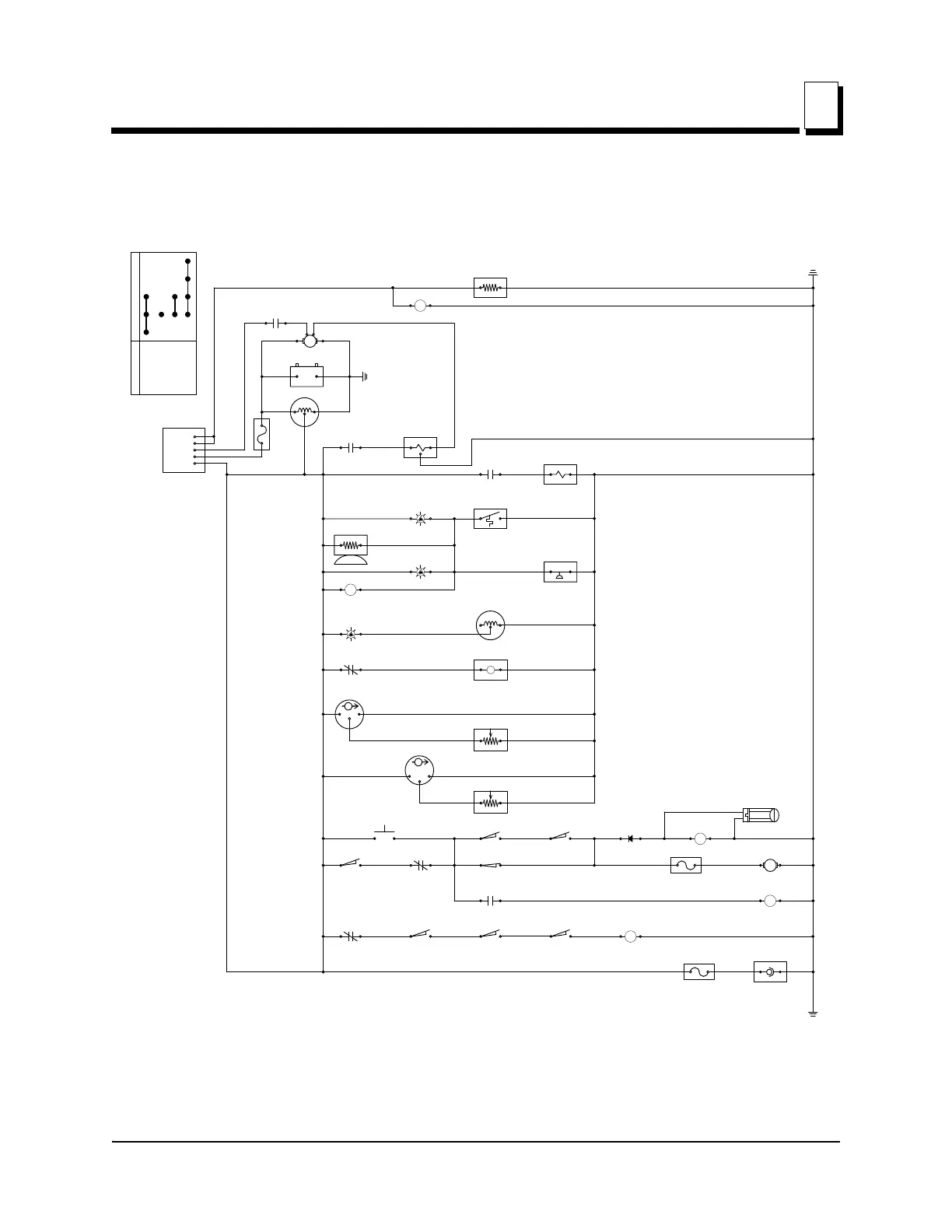
5.3 Electrical Information
Electrical Schematic
HR
+
-
LT Neutral
RT Neutral
17
AC
30
50
19
G
Glow
Fuel Solenoid
Key Switch
Tachometer
Oil Pressure Switch
Hour Meter
Starter
M
Red
Battery
+
_
Alternator
EX
Fuel Pump
M
G
Temp Gauge
Alarm
Seat Delay
Auxillary
Power Point
Diode
+
_
Blk
Gry
Red
30A
Clutch
Pull
Sol
F2
10A
F1
10A
F6
Water Temp Switch
30 AC 1719 50
3
0
1
2
Preheat
Off
On
Start
Key Switch
CR4
CR3
CR7
30 87
CR1
30 87
85 86
CR2
30 87
CR4
Oil Press
Water Temp
30 87A
Water Temp Sender
Alternator
Alternator
EX
Alternator
Blade C
Blade B
CR1
Brake 2
CR3
Brake 1
RT Neutral
Brake 1
Blade B
CR2
85 86
85 86
85 86
85 86
Seat
Ylo/Wht
Red/Grn
Org
Blk
Red
Red/Blk
Red/Ylo
Red/Blk
Gry
BLK
Red/Ylo
Vio
Blu
Pnk
Red/Wht
Wht/Vio
Grn/Ylo
GrnWht/GrnVio/Wht
Grn/Wht
Wht/Blu
Red/Blu
Wht
Wht/Blk
Red/Blk
LT Neutral
Org/Wht
Brn
Wht/Blk
Wht/Blk
$PNN%JFTFM

Table of Contents

Related product manuals