EasyManua.ls Logo

Lennox FCM 150 - Page 104

Lennox FCM 150
130 pages
Print Icon
To Next Page IconTo Next Page
To Next Page IconTo Next Page
To Previous Page IconTo Previous Page
To Previous Page IconTo Previous Page
Loading...
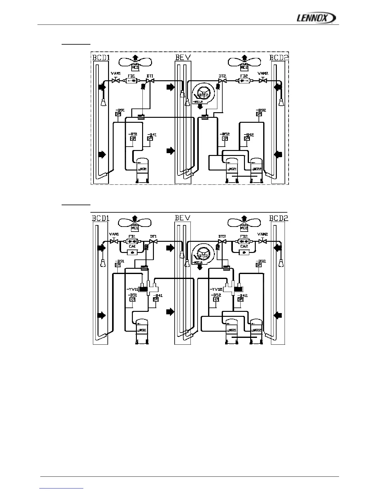
PRINCIPLE SKETCHES
FLEXYII_WSHP-IOM-0909-E Page 102
FCM 150
FHM 150

Table of Contents

Other manuals for Lennox FCM 150

Related product manuals